Willem M. Dudok建築作品分析

Town Hall , Hilversum , 1924~1931

 

 

基本資料

原始圖面

2D圖面

3D圖面

設計理念

表現手法

評論分析

參考資料

 

         

 

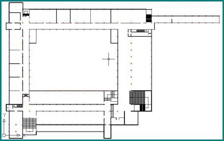
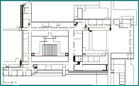
2D圖面

  一F平面圖檔下載

  F平面圖檔下載

  F平面圖檔下載

正立面圖

 

西向立面圖                                       東向立面圖

背向立面圖

 

GO BACK