Willem M. Dudok建築作品分析

Town Hall , Hilversum , 1924~1931

 

 

基本資料

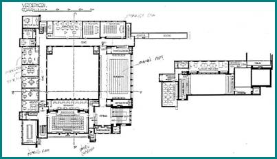
原始圖面

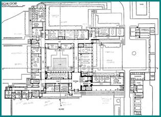
2D圖面

3D圖面

設計理念

表現手法

評論分析

參考資料

 

         

 

基本圖面原始手稿

 

  

基地配置圖                        正立面圖                              透視圖

 

         一樓平面圖                             二樓平面圖           三樓平面圖

    

          透視圖                                          正立面圖

 

GO BACK