|
住宿區、廚房構築性分析(Arthur and Yvonne Boyd Art Centre) |
|||
|
主結構 |
圍覆 |
細部處理 |
|
|
住宿區、廚房 |
屋 頂:木框架 |
金屬浪板屋頂面 |
木框架+混凝土牆 房間單元內滑門 臥鋪間隔區 天花處理 燈具 開窗形式 |
|
結構體:清水混凝土牆、柱 |
木窗、木製遮陽板 |
||
|
------------------------------------------------------------------------------------------------------------- |
|
|
住宿區、廚房細部處理 |
|
|
|
|
|
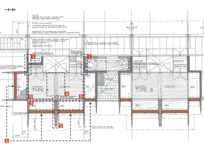
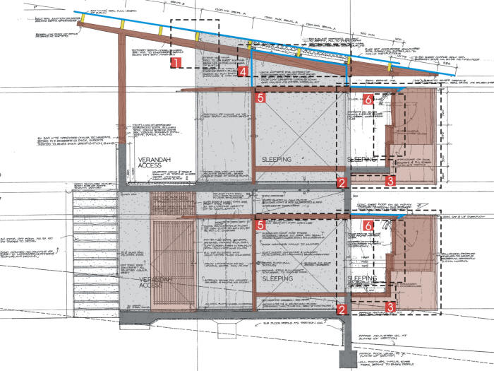
圖22:博藝得藝術中心_住宿區剖面結構示意圖 底圖資料來源:Glenn Murcutt:buildings+projects 1962-2003 |
|
|
|
|
|
圖23:博藝得藝術中心_住宿區平面結構示意圖 底圖資料來源:Glenn Murcutt:buildings+projects 1962-2003 |
|
|
------------------------------------------------------------------------------------------------------------- |
|
|
1.木框架+混凝土牆 |
|
|
說明: 屋頂結構的短向木樑與現場澆製的清水混凝土牆嵌合,嵌合部位長度為1.2米,判斷混泥土牆內有岡智構件與木樑接合
|
|
|
圖24:木框架+混凝土牆細部位置示意圖 |
|
![]() |
![]() |
|
圖25:木框架+混凝土牆細部 資料來源:Glenn Murcutt:buildings+projects 1962-2003 |
圖26:木框架+混凝土牆細部示意圖 底圖資料來源:Glenn Murcutt:buildings+projects 1962-2003 |
|
2.房間單元內滑門 |
|
|
說明: 四張臥床唯一單位的空間,利用懸挑的木製遮陽間隙,以及內部「二夾一」的木框架,作為內部隔間滑門的收藏空間
|
|
|
圖27:房間單元內滑門細部位置示意圖 |
|
![]() |
![]() |
|
圖28:房間單元內滑門細部 資料來源:http://www.pushpullbar.com/ |
圖29:房間單元內滑門細部示意圖 底圖資料來源:Glenn Murcutt:buildings+projects 1962-2003 |
|
3.臥鋪間隔區 |
|
|
說明: 懸挑出混凝土結構外的臥鋪區,二樓部分以混凝土結構為底部支撐,一樓部分則以木製框架為支撐
|
|
|
圖30:臥鋪間隔細部位置示意圖 |
|
|
|
|
|
圖31:臥鋪間隔細部 資料來源:Glenn Murcutt:buildings+projects 1962-2003 |
圖32:臥鋪間隔細部示意圖 底圖資料來源:Glenn Murcutt:buildings+projects 1962-2003 |
|
4.天花處理 |
|
|
說明: 屋頂木框架未與混凝土牆相接部份,在室內以木板作天花處理,並於兩側嵌入玻璃作為室內與室外的區隔
|
|
|
圖33:天花處理細部位置示意圖 |
|
|
|
|
|
圖34:天花處理細部 資料來源:http://www.pushpullbar.com/ |
圖35:天花處理細部示意圖 底圖資料來源:Glenn Murcutt:buildings+projects 1962-2003 |
|
5.燈具 |
|
|
說明: 內部「二夾一」的木框架中間,沿著臥床邊緣,設置日光燈管
|
|
|
圖36:燈具細部位置示意圖 |
|
|
|
|
|
圖37:燈具細部 資料來源:http://www.pushpullbar.com/ |
圖38:燈具細部示意圖 底圖資料來源:Glenn Murcutt:buildings+projects 1962-2003 |
|
6.開窗形式 |
|
|
說明: 一個懸挑的木製臥鋪單元以四處固定玻璃的木窗,以及六扇可開啟的木格窗為開口,房間單元旁的衛浴設施則以混凝土牆上部的木柵窗為開口
|
|
|
圖39:開窗細部位置示意圖 |
|
|
|
|
|
圖40:開窗細部 資料來源:http://www.pushpullbar.com/ |
圖41:開窗細部示意圖 底圖資料來源:Glenn Murcutt:buildings+projects 1962-2003 |
|
------------------------------------------------------------------------------------------------------------- |
|