Centre Culturel Georges Pompidou
        Architect : Renzo Piano & Richard Rogers

Plan

 

 

 
 

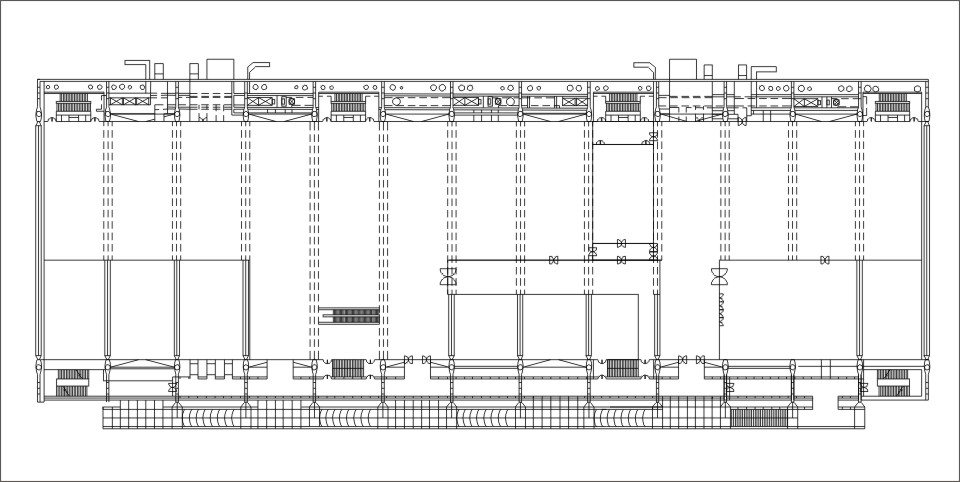
屋頂平面圖

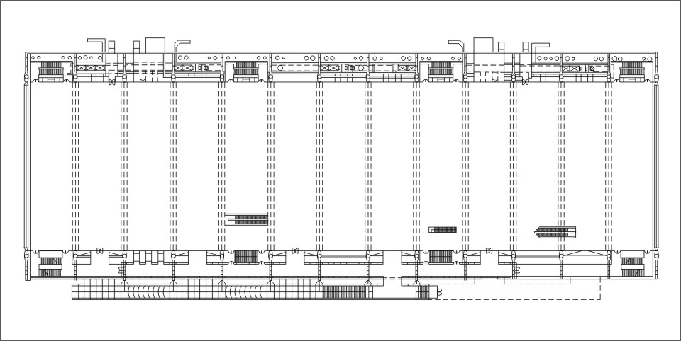
三樓平面圖

標準平面圖

CAD檔下載

東向立面圖

             

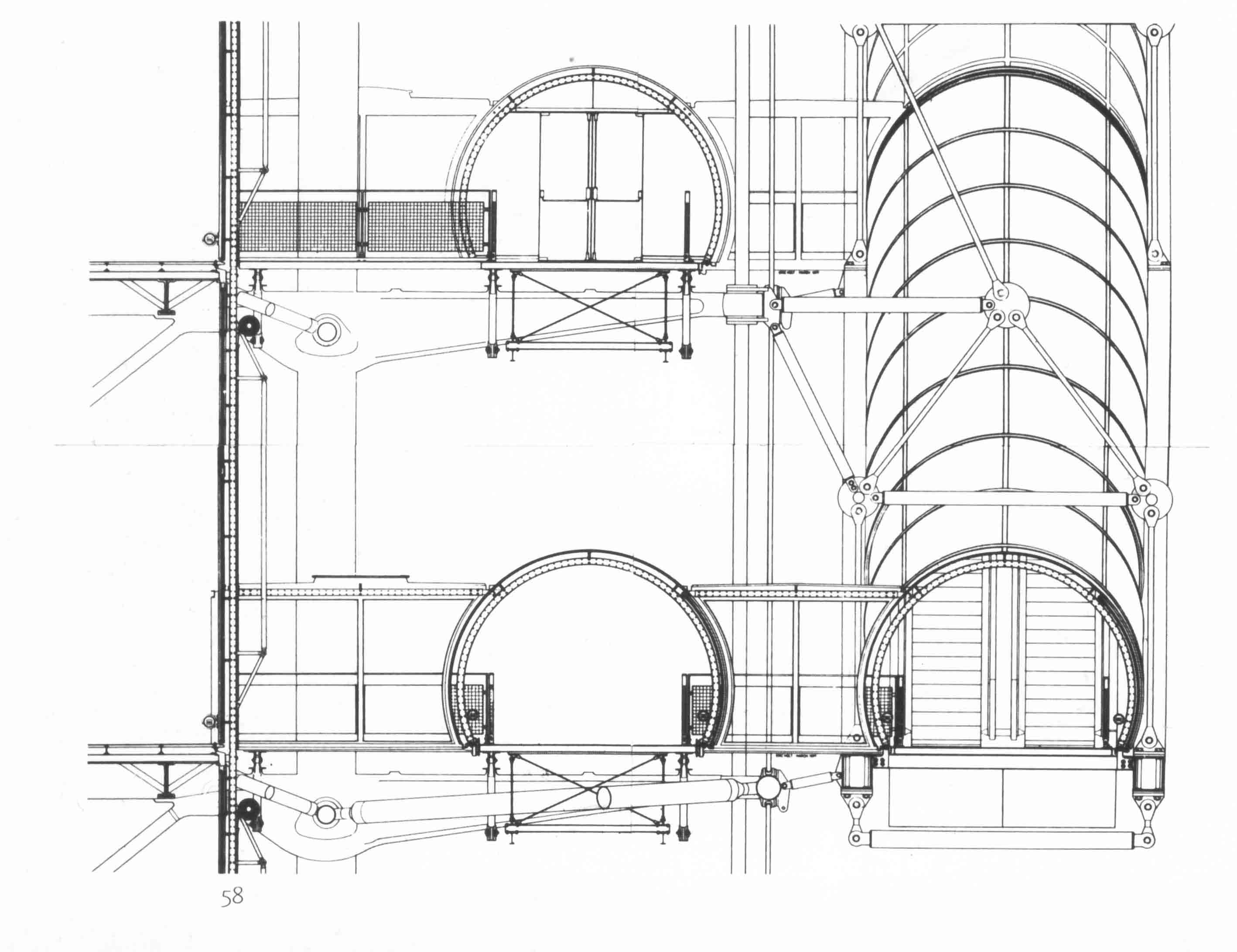
                                                        電扶梯詳圖

 © 2005 by Wisley

Back  Next                                                    首頁


Top