圖面


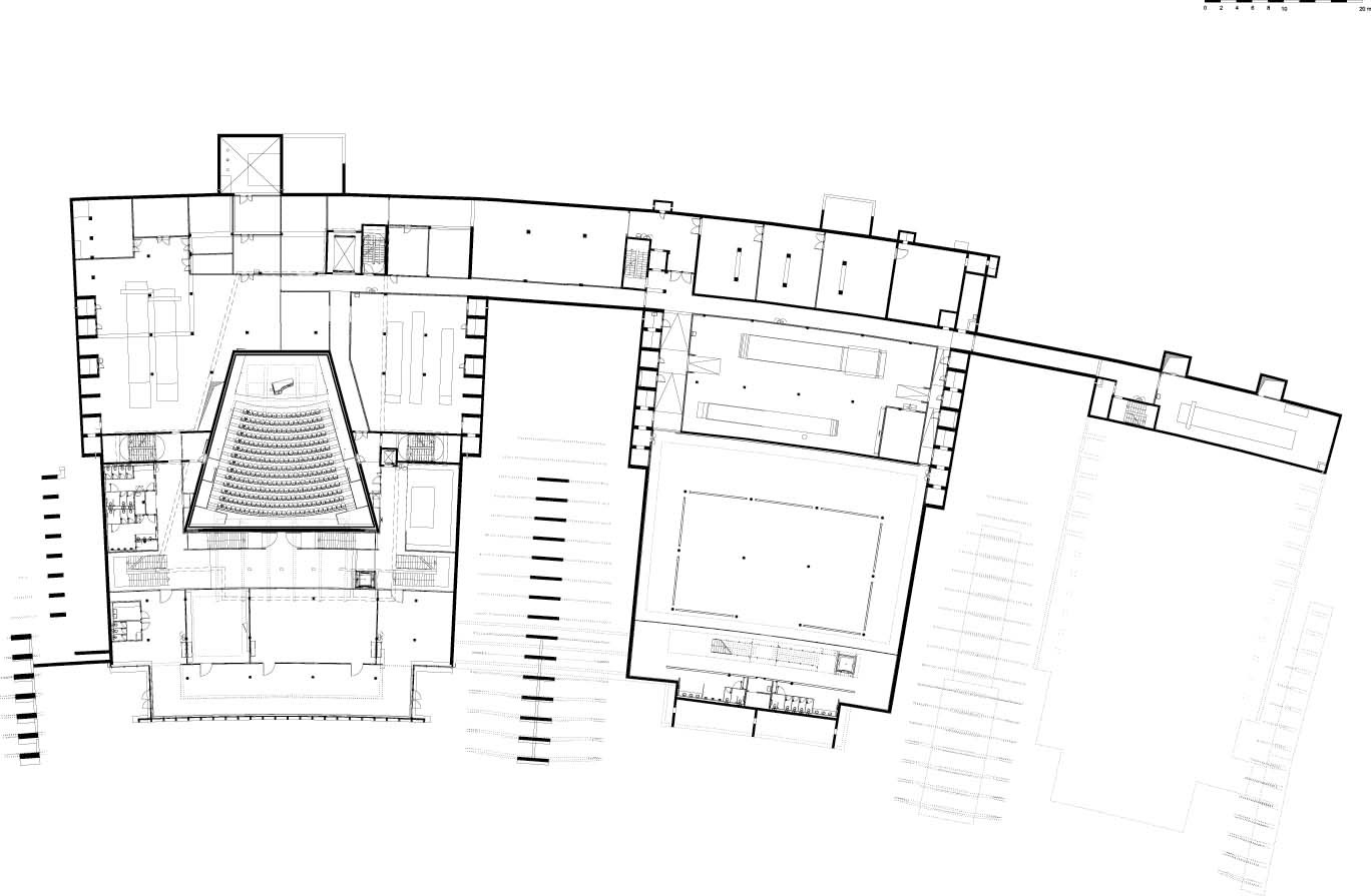
地面層

地下層

剖面