1F平面圖

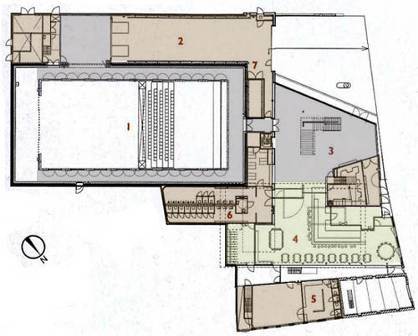
入口大廳/主樓梯(右圖3)

結合酒吧、餐廳區

2F平面圖

主要劇院採自然側光(右圖1

3F平面圖

從劇院上方的工作走道往下方看

(右圖12

4F平面圖

電影院(右圖13

BACK / NEXT