首頁
建築案例
建築內部家俱設計
集合住宅理念演變
廚具
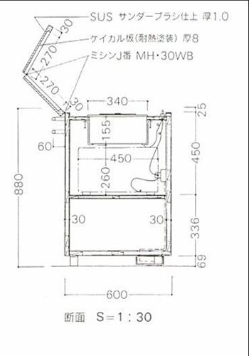
做為住家的基本需求之一,
將炊事部分和柱做結合,增加
收納空間,延長了料理部分台
面,並家電器部分一併設計進
去,完成這生活場所的設計。
便器