建築與空間配置
作者從以下三個標準中來審視空間配置
Terence Riley 1998
固 有的這些要求都是一些矛盾。博物館應該有一個強大的內在,也應確定與曼哈頓的條件。它應該是一個‘珍寶的避難所“和動態”實驗室“。應該致力於歷史和未 來。這些矛盾都與如何準確應對現代主義問題有關,作為一個歷史運動,或作為一個持續的傳統?因此,我們的目的也是要看看博物館如何解決通過新的建設和安裝 這些衝突。
谷口應對這一簡單的是使用兩個入口使城市流動到建築物的心臟,並打開博物館走向城市。他把花園當作核心要素,重新導向走向沿東西向的方向發展的新中 軸線。他整合了各個空間成一個整體,通過頂部照明中庭,並用大樓,花園和中庭之間的交界處,組織大規模的流通。中庭給畫廊數量三方組成,一個中心。不過, 也有很強的對角線鏈接中庭,畫廊和花園。一個經典的成分,我們在‘的理想別墅的數學“(1984年)中描述了羅提醒柯布西耶和密斯的關鍵歷史主義的結合內 分散的傾向。但是,儘管這些建築師挑戰核心強調基於運動的經驗,谷口允許中心和其向外部關係被從內部感覺到。

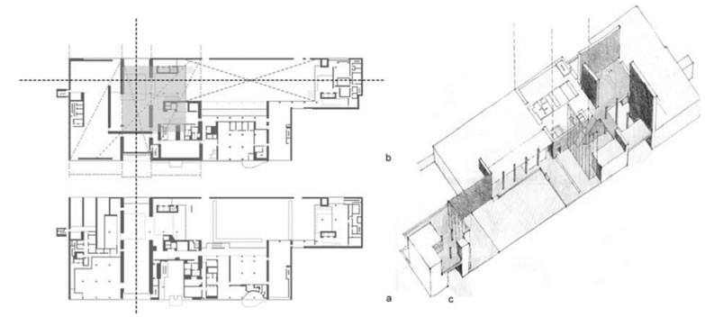
Floor plans and axonometric view of atrium and garden (axo drawn by K.Patel). (a) Ground Floor, (b) First Floor.
在公共區域交疊空隙在腦海中帶來開創性的“現代”文本:第一,巴爾自己比較了風格派和密斯(巴爾1936年),以及羅和Slutzky“淺層空間” 或“驚人的透明度”的概念,基於相同的立體派繪畫基礎上在五樓畫廊展示(羅1984年)。谷口的計劃帶來的垂直度和曼哈頓的內部的城市動態,並結合經典的 對稱和比例的現代主義理想主義與現代主義的“淺”空間和新現代主義熱情光線和空間。但是,如果這是建築物的幾何和雕塑性'講出',我們感興趣的是,在一個 大的尺度中如何將其“說話”的內容涉及空間特徵。






2f 當代藝術 3f建築與設計
4f繪畫與雕塑(1940-1970)
5f繪畫與雕塑(1880-1940)
中庭可見性 (模擬研究)
樓層的可見性分析說明,中庭廣泛的主導了整棟建築關於移動時的經驗。它們還表說明了,對角線的重要在單層樓中的空間組織被拾起,這決定了博物館是如 何作為一個整體被經歷(圖3E,F)。幾何和體驗系統之間的重合點在對角線強調畫廊和中庭,中庭和花園,建築和城市之間的關係。這一特性告訴我們我們谷口 的意圖將藝術,建築和城市整合起來。整合的模式和中庭加劇垂直與對角線的連接,對應暗示了博物館與城市空間之間的協同作用。新的建築整合了建築與街道的景 觀。這也意味了,豐富的視覺關係與社會內部共存將邂逅的概率場延伸到了外部和城市,作為一個整體


Figure 3:Visual integration.. (a) Ground Floor, (b) Second Floor, (c) Fourth Floor excluding atrium (d) Fifth floor, excluding atrium, (e) Fifth floor including atrium, (f) Fourth floor including atrium.
