Digital Tectonics
Toyo Ito

案例一

案例二

分析探討

 

 

基地環境
設計概念
建築形式
數位工具
構築實踐

‘Meiso no Mori’ Municipal Funeral Hall, 2004-06, Kakamigahara

 

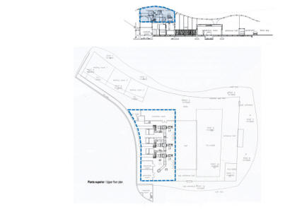
[一層及二層平面圖]

圖片資料來源:(2009). Toyo Ito, 2005-2009 : espacio líquido = liquid space

―――――――――――――――――――――――――――――――――――――

[東向立面圖(主入口大廳)]

圖片資料來源:(2009). Toyo Ito, 2005-2009 : espacio líquido = liquid space

―――――――――――――――――――――――――――――――――――――

[北向立面圖]

圖片資料來源:(2009). Toyo Ito, 2005-2009 : espacio líquido = liquid space

―――――――――――――――――――――――――――――――――――――

[西向立面圖]

圖片資料來源:(2009). Toyo Ito, 2005-2009 : espacio líquido = liquid space

―――――――――――――――――――――――――――――――――――――

[短向剖面圖-火葬穿廊(上圖)與告別式、收骨空間(下圖)]

圖片資料來源:(2009). Toyo Ito, 2005-2009 : espacio líquido = liquid space

―――――――――――――――――――――――――――――――――――――