文字方塊: 建築類型:Office Buildings
建築名稱:Gresham Office Building
 

 

 


Gresham Street Office Building

基本資料    基本圖面    設計說明。分析

 

 

 

基本資料

建築師: Nicholas Grimshaw & Partners

建造年代:1997-2002

座落地點: city of London

 

 

 

 

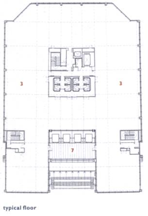
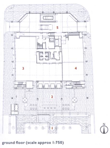
基本圖面

 

 

箭頭:主要入口

粉紅色區域:lobby

綠色區域:service core

 

 

 

 

 

1. 沉下的花園

2. 前廳

3. 辦公室

4. 咖啡廳

5. 往停車場

6. 陽台

7. 抬高的大廳

 

 

 

 

 

 

 

開放式平面:內部無柱位的困擾,服務動線擺在中間

背面角落為斜面處理:留設鄰近建築物足夠的光照面積

 

 

Top