³]p»¡©ú¡C¤ÀªR
¥|ӥ߱¬Ò¦³ªí±¡
Concept
Entrance Facade Detail Lobbies

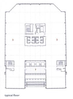
---------------------------------Area¡G10750¥¤è¤½¤Ø
Gresham Street¤j³¡¤À¤´«O¯dºû¦h§Q¨È®É´Áªºscale
¡]¨ä¥Lµó¹Dªº¼Ó°ª¤Ø«×¤w©ñ¼e³\¦h¡^
°ò¦a¦ì©óGresham ©M Noble StreetªºÂਤ
Nicholas¨M©w¿í´`©µÄò즳scale


¤@¯ë¿ì¤½¤j¼Ó³£±N¥Dn¬¡°Êªí²{¦b¥¿¥ß±¡A°¼±©MI±³£¤£°µ¥ô¦óªí±¡
«Ø¿vª««n±¬°St. John Zacharyªºªá¶é
-------¾ú¸gGreat Fire¤§«á¡A¥ÑPeter Shepheard«·s³]p¬°¬ö©À1941¦~¨ÆÂÝ


Lobby©ï°ª¡A©Ò¥H²`«×Åܱo¸û²L¡A¤W¼h¥~Àðµy·L¶É±×
¨C¤@¼Ó¼h³£¦³¤á¥~®â´Ó¥¥x¡AÅý´Ó®â¯àº¥º¥¬°¬Á¼þ´£¨Ñ¾B½®¡A
¦ý¬O¤£·|§¹¥þ¾B½ª±q¨C¼hlobby¯àªY½à¨ìªºSt. Paul©M«°¥«ªº´º¦â------¡uTree House¡v

µ¡¤áºc³y¡G«B¾B±ø¬°¦Çºñ¦âªº¥Ûª©§÷½è
----------------Ãþ¦Ê¸¡A¦³¤£ù׿ûªº°ò®y¡A±N¸ü«¶Ç¦^¥Dnµ²ºc
²Å¦Xô¼w´_¥j¥D¸qªÌªº³B²z¤âªk¡G¾÷¯à©Êºc¥ó¦ý¤S¦³¾A·íªº¸Ë¹¢¥\¯à
°¼±©MI±ªº³B²z¤ñ·Ó¥¿¥ß±----¬Á¼þ»P¥Ûª©

Lobbiesªº¬Á¼þ³q³z©Ê½è¡G§Î¦¨¤@Óµo¥úªº««ª½ªÅ¶¡¡A»P¤J¤f¤jÆU²£¥Í³s³e©Ê
Lobby¥ª¥k¨â°¼¬°¿ì¤½«Ç°Ï°ì----¤C¼Ó¥H¤WÀ𬰶ɱױ
¸ê®Æ¨Ó·½
1. The Architectural Review, 1268, Oct. 2002, pp.80-83.
2. http://www.grimshaw-architects.com/projpage2.asp?id=13