基本資料 基本圖面 設計說明。分析

基本資料
建築師:Jestico
+ Whiles
建造年代(室內設計):2002
座落地點:Prague, Czech Republic
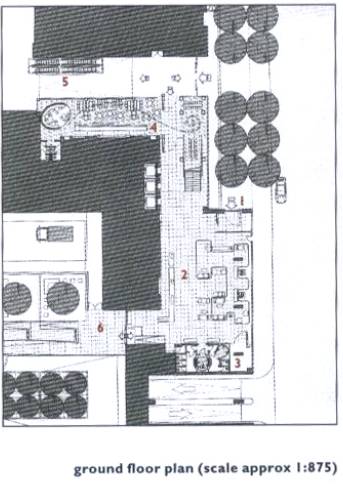
基本圖面
粉紅色塊:公共區域
淺藍色塊:垂直動線
暗紅箭頭:次要動線
1.
主要入口
2.
接待大廳
3.
商店
4.
咖啡廳/酒吧
5.
往地鐵的電扶梯
6.
庭院
|
|




















橘色塊:非公共區域
粉紅色塊:公共區域
淺藍色塊:垂直動線
7.
接待處
8.
餐廳
9.
私人包廂
10. 會議準備室
11. 會議室/宴會廳
|
|


主要設備:
280間房、商務設施、可容納200人的餐廳(1F)和酒吧(GF)
(231 rooms and 8 suites)
Top