基本圖面


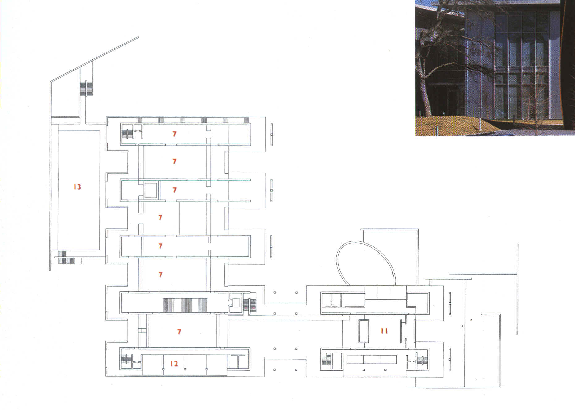
ground floor

1.入口大廳    2.資訊服務區   3.美術商品區    4.咖啡餐飲區    5.陽台    6.講堂    7.畫廊    8.藝術工作區    9.卸貨區

10.倉庫         11.辦公室          12.美術教室      13.雕刻藝品陽台              14.機械室              15.停車區

first fioor

基本圖面    設計說明    分析    首頁

參考資料:Architectural Review 1278,P32-39

http://www.kimbellart.org/news/news.cfm?edit=yes&id=83

M9213104  梁箐華