蘇州博物館
中國,蘇州
2002-2006
蘇州博物館新館位於蘇州古城北部歷史保護街區,
與拙政園和太平天國忠王府毗鄰,占地面積15,000㎡。
其彌補了古物無收藏之地之苦,同時也成為蘇州著名的
傳統而不失現代感的建築。

它北倚世界文化遺產拙政園,東臨全國重點文物保護單位忠王府,南對蘇州“文化長廊”起點東北街,西接城市幹道齊門路。選址大膽顯赫,又蘊涵深刻。
該地塊被貝聿銘先生稱為“聖地”,在這一地塊上設計博物館是“人生最重要的挑戰”,“在這裡設計博物館很難很難,既要有傳統的東西,但又一定要有創新,傳統的東西就是要運用傳統的元素,讓人感到很協調、很舒服;創新的東西就是要運用新的理念、新的方法,讓人感到很好看,有吸引力,因為時代是在發展的”。




中而新、蘇而新”
——貝聿銘的蘇州博物館新館設計主題
博物館新館的設計結合了傳統的蘇州建築風格,把博物館置於院落之間,使建築物與其周圍環境相協調。博物館的主庭院等於是北面拙政園建築風格的延伸和現代版的詮釋。新的博物館庭院,較小的展區,以及行政管理區的庭院在造景設計上擺脫了傳統的風景園林設計思路。而新的設計思路是為每個花園尋求新的導向和主題,把傳統園林風景設計的精髓不斷挖掘提煉並形成未來中國園林建築發展的方向。
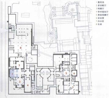
各層平面示意:
博物館包括一個占地7000平方米的展覽館,一個容納200個座位的禮堂,一個古物商店,
行政辦公室以及文獻資料圖書館和研究 中心,另外還有一個空間用作儲藏,以及一些中國園林。
其平面佈局在總體外輪廓上呈現出斜三角的幾何形態,東西兩邊格局採用中軸對稱而兩廂的佈局又各有特色,規整中又富有變化;石和水景的 運用體現了因地制宜的園林手法。
東西兩側的院落式組合和周邊的合院式住宅相呼應
![img200610181703485[1]](蘇州博物館.files/image012.jpg)
新館採取了與設計其他城市標誌性建築物不同的手法,保留了蘇州溫和、清淡、俊秀的黑自基調。為了與周圍民居環境協調,博物館儘 管用的全是現代新材料,但外牆與內牆都以純淨的白色作為主基調,僅僅在空間轉折處用灰色的線條來勾勒外形,同時,深灰色石材的屋面 與白牆相配,清新雅潔,與蘇州傳統的城市色彩肌理相融合,新瓶老酒,為粉牆黛瓦的江南建築符號增加了新的詮釋。從新館任意房間的窗 戶向外看都會發現新館坡度與遠處及更遠處的蘇州傳統民居的屋頂坡度幾乎不差分毫,這使得人們首先從圖形構成認同達到對傳統文化的認 同。
從建築結構看,現代幾何體構成的
坡頂隱含著蘇州古建築傳統的斜坡屋頂
的基本概念,三角形、正方形不斷的繁
衍和重構。













屋頂窗戶的設計,借鑒了中國傳統建築中老虎天窗的做法,但對此進行了改良,窗戶開在了屋頂的中間部位,這樣屋頂和屋面不是一個斜坡下來,而是形 成一個折角。
屋頂鋪小青瓦是蘇州傳統建築的特色,但是,貝聿銘認為,如果用小青瓦鋪設,小青瓦易碎易漏,需要經常維修的缺點還在其次,而屋頂和屋面不協調,更 是致命傷。為此,用了特色石材——“中國黑”,其黑中帶灰,淋了雨是黑的,太陽一照顏色變淺成深灰色。石片被加工成菱形,鋪設好後立體感很強。建築的 整體風格達成了統一,屋頂和屋面呈現出三維的效果。
新館大門為玻璃重簷兩面坡式金屬梁架結構,既有傳統建築文化中大門的造型元素,又以現代材料賦予其嶄新的風格。入館前有一庭院,宛約 而舒朗,正如園林設計總欲言又止
![2008828202521164_2[2]](蘇州博物館.files/image040.jpg)



大廳頂部的米字形鋼結構沒有任何支撐,它在風格上和整體建築非常協調,但是這不僅是出於美學考慮,而是結構的 原因。通過精密計算之後,只有這樣的幾何形體變化才能進 行力的轉換,在這樣一個既定空間中承載負荷。











![2416594_132110025_2[1]](蘇州博物館.files/image070.jpg)
天頂、內廊:
強烈的幾何形體,光與影的交匯。貝氏作品的標誌性建築語言。玻璃 天頂下纖細的圓管讓入射的光線漫射或 折射而下,使得室內空間的自然光格外 柔和;天頂的設計極具幾何形體,建築 表現力強烈。


內廊:
自然光線灑落柔和而錯落有致,人們透過玻
璃天頂可以仰望室外藍天,在復古的廊道內行走
時感受自由而輕鬆。


![09_011625_2[2]](蘇州博物館.files/image082.jpg)
![2_200811131648473SYgR[1]](蘇州博物館.files/image084.jpg)
![a153d8958c72bd5cd1135ecc[1]](蘇州博物館.files/image086.jpg)
“讓光線來做設計”是貝氏的名言。 玻璃頂棚肆無忌憚地讓室內充滿陽光, 從中我們能夠體會到光線豐富的語彙和 對空間的影響力。





借景: 運用了我國傳統造園手法,漏窗讓人們在狹長的廊道中可以不停變換視線,欣賞園內不同視野的景色。




