The 21st Century Museum of Contemporary Art, Kanazawa
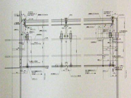
結構細部圖(圖片來源:El Croquis 121/122)
|
典型外部垂直剖面圖-天花 |
玻璃外部垂直剖面圖-天花 |
|
|
|
|
典型外部垂直剖面圖-地板 |
玻璃外部垂直剖面圖-地板 |
|
|
|
|
展廳玻璃牆剖面圖-天花 |
展廳玻璃牆剖面圖-地板 |
|
|
|
|
採光中庭玻璃外牆實景 |
|
|
|
|