建築作品分析
.

建築師: ERNST MAY 

建造地點:德國法蘭克福

建照時間:1925 - 1933

建築類型:獨立住宅

設計手法:利用不同軸線來分割單元平面.複製基本元素.組合而成的獨立住宅

設計說明

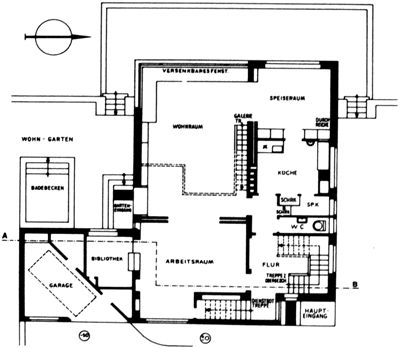
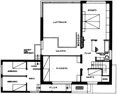
        選擇了解決電梯看法作為他自己房子與阿爾薩斯的當地人在一起直接連接, 然而在關於建築作為連接大廈不同地比阿爾薩斯的當地人在相反強烈引起不由物質選擇亦不由建築學而從外部解決。大廈看上去相當謙虛首先光滑的以狹窄的, 從屋頂大陽臺去解決大廈對新法蘭克福的容納。很好的想法庭院被投入原則和嚴密建築學的調整零件。房子不同在外部特點與其它解決房子新法蘭克福的地方, 是二個子彈頭高, 在命中壁角被帶領的窗口。在結構圖畫一樣被畫, 它打開和與阿爾薩斯游泳池的當地人放棄分離的可能性在區域和自然之間。唯一窗口的低部由限制更加寬廣的。在房子的中心機能變得清楚:它的中心是一所住宅像一個大廳與畫廊, 織布機有地方,"在 那舒展"。

      呼吸清醒的嚴肅與白色, 牆壁和黑暗, 與工藝設施和家俱相關。唯一 裝飾: 地毯在被吸收的口氣在大廈以後安置收集。二個子彈頭的可能組織的剪影與商店提供, 一個民用家庭建議客房和二個女孩房間, 可能使臺階來區分。速寫自己作為建築師它自己的房子, 一個適當的大廈, 一切有它的地方。在它的鎮靜克制和扮演 "物理 計劃者 然而實驗性對廁所在末端感覺和在它平衡的聯繫對庭院和自然是對新法蘭克福主要的房子

 

                                           

Christoph Mohr / Michael Müller: Funktionalität und Moderne. Das Neue Frankfurt und seine Bauten

        

                           1F                                                                     2F

圖片出處:http://www-public.tu-bs.de:8080/~y0009394/monographien/ernst_may/hausmayffm.html

 

 

二.

建築師: ERNST MAY 

建造地點:德國法蘭克福

建照時間:1926 - 1927

建築類型:聯合住宅

設計手法:

        建築學跟隨與形狀抓住了法蘭克福露臺的房子雙類型, 引起了對華麗服裝表面的明亮。窗口被上色了, 或許強烈的深藍。 雙重露臺房子的前線接受它的面孔由二方形地在彼此頂部窗口和使天窗狹窄頂層和屋頂分開,在之後屋頂平臺 。

設計說明

        圖表 "構築" 因為獲得方形的雨水天溝和天溝管子。解決的特徵是當的一次在它的東部結論與塔像,在底層商店容納中。扣緊拐角以動機為塔與狹窄擊中了壁角賽跑小條窗口, 用國際樣式的立場在對比對舒適的露臺房子帶有綠色。解決的開頭在西部動機在解決東邊對遠的鍋爐。這裡在解決的閉合的翼要邊緣大廈和開放風景公園之間大廈當局的二個唯一家庭房子: 西部阿爾薩斯的房子當地人和東部房子。 那些是 "主要 房子" 對新法蘭克福作為的大規模項目的部份。作為還建築學法蘭克福樓房建築辦公室根據方向把責任的多數其它法蘭克福住房發展, 為了是上述地面建築草稿的當局概念, 關於建築來免於疑義, 但當他大概負責對集體城市規劃, 混凝土建築被開發在樓房建築辦公室的通常年輕 , 雖然 在合作他之下。 然而他在理性主義的表示這些成為了極端的現代建築學,  然而 "新法蘭克福 的" 標誌 將被接受, 可相比較和並世成就在 Celle, 科隆 或 柏林 。

          

圖片出處:http://www-public.tu-bs.de:8080/~y0009394/monographien/ernst_may/hoehenblick.html

 

參考資料:

http://www-public.tu-bs.de:8080/~y0009394/monographien/ernst_may/hausmayffm.html

http://www-public.tu-bs.de:8080/~y0009394/monographien/ernst_may/hoehenblick.html

回上頁