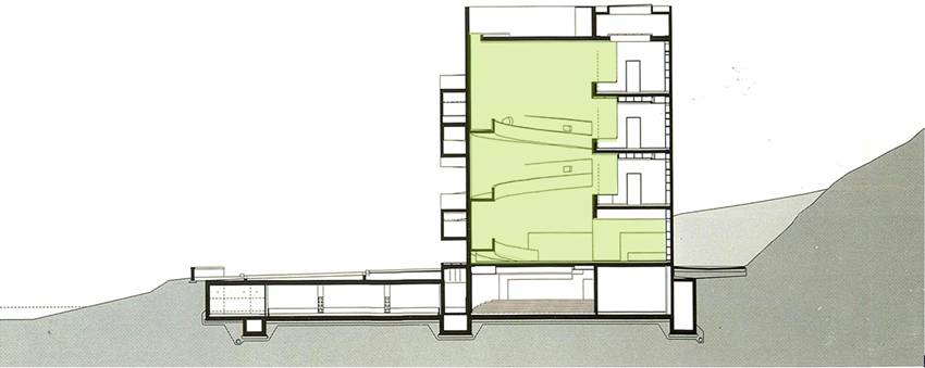
µu¦V­å­±¡]¦û¦a­±¿n¬ù8,250¢T¡A¥]¬A9­Ó®i¥ÜªÅ¶¡¡A¤À§G¦b3­Ó¼Ó¼h¡^

¤W¼hªº®i¥ÜªÅ¶¡±ÄÂù¼h¬Á¼þ¨Ó½Õ¾ã¥ú½u

 

µu¦V­å­±¡]¦a­±¼hªº¤¤®x¤jªÅ¶¡¥Î¨Ó®i¥Ü·í¥NÃÀ³N»PIbereÃÀ³N®aªº²{¥NÃÀ³N§Î¦¨¹ï¸Ü¡^

 

 

 

ªø¦V­å­±

 

BACK / NEXT