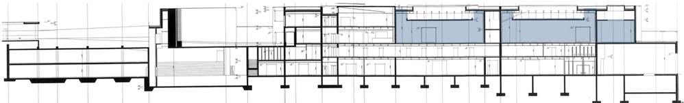
西側長向剖面圖

東側長向剖面

 

 

 

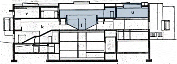
短向剖面1(通過三種不同採光方式的展示空間)

 

 

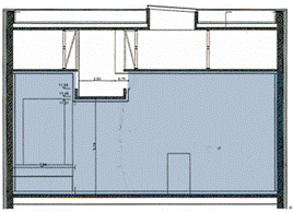
短向剖面2(通過中庭採光的空間)

 

 

  

中間的展示空間

 

 

 

東側的單元展示空間

 

BACK / NEXT