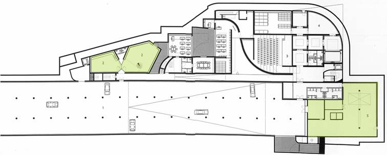
連接展示空間垂直動線包含一個環繞建築量體形成懸臂式的畫廊cantilevered galleries斜坡部分在中庭內部分在中庭外面。

兩個手扶梯和樓梯位於展示空間的兩端。

 

 

BACK / NEXT