Columbia College Media Production Center
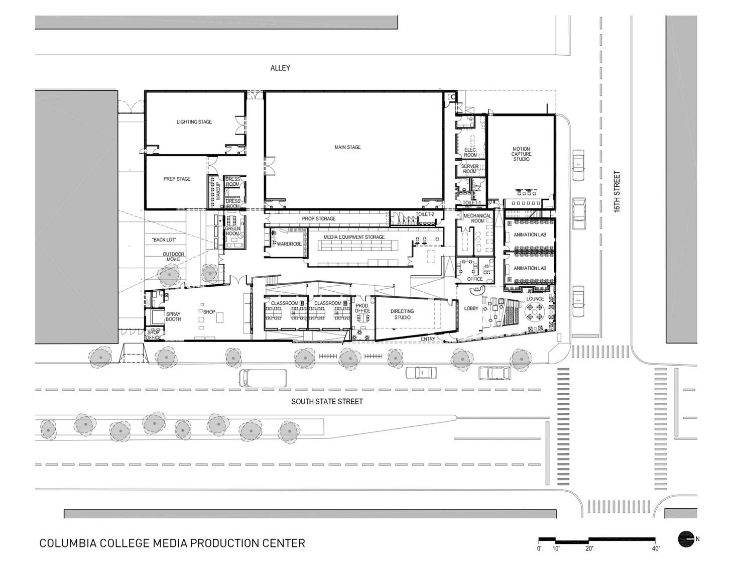
此案例是電影系之教室,以教學專業電影知識為主,電影是由許多的不同技術的幕後工作人員和技術所完成的,在此設計中為了讓學生可以在學系自己的技術之外也可以同時觀摩其他技術的養成,以鼓勵電影系不同領域學生和老師彼此合作學習,建築師將原本電影製作空間封閉性變為可見性,使得在三個攝影棚的不同教學、學習之下可
以互通。





藉由本設計中所存在之空間通透性,建築師更將影像中的景深概念加入設計,更加回應電影學院。

景深在光學中,尤其是錄影或是攝影, 是一個描述在空間中,可以清楚成像的距離範圍。 雖然透鏡只能夠將光聚到某一固定的距離,遠離此點則會逐漸模糊,但是在某一個特定的距離內,影像模糊的程度是肉眼無法察覺的,這段距離稱之為景深。對於某些影像,例如風景照,比較適合用較大的景深,然而在人像攝影時,則經常使用小(短)景深來構圖。
在空間上運用光影的變化、燈光設計和不同空間的可見性創造出有如影像景深般的原理。



XXI Century National Film Archive