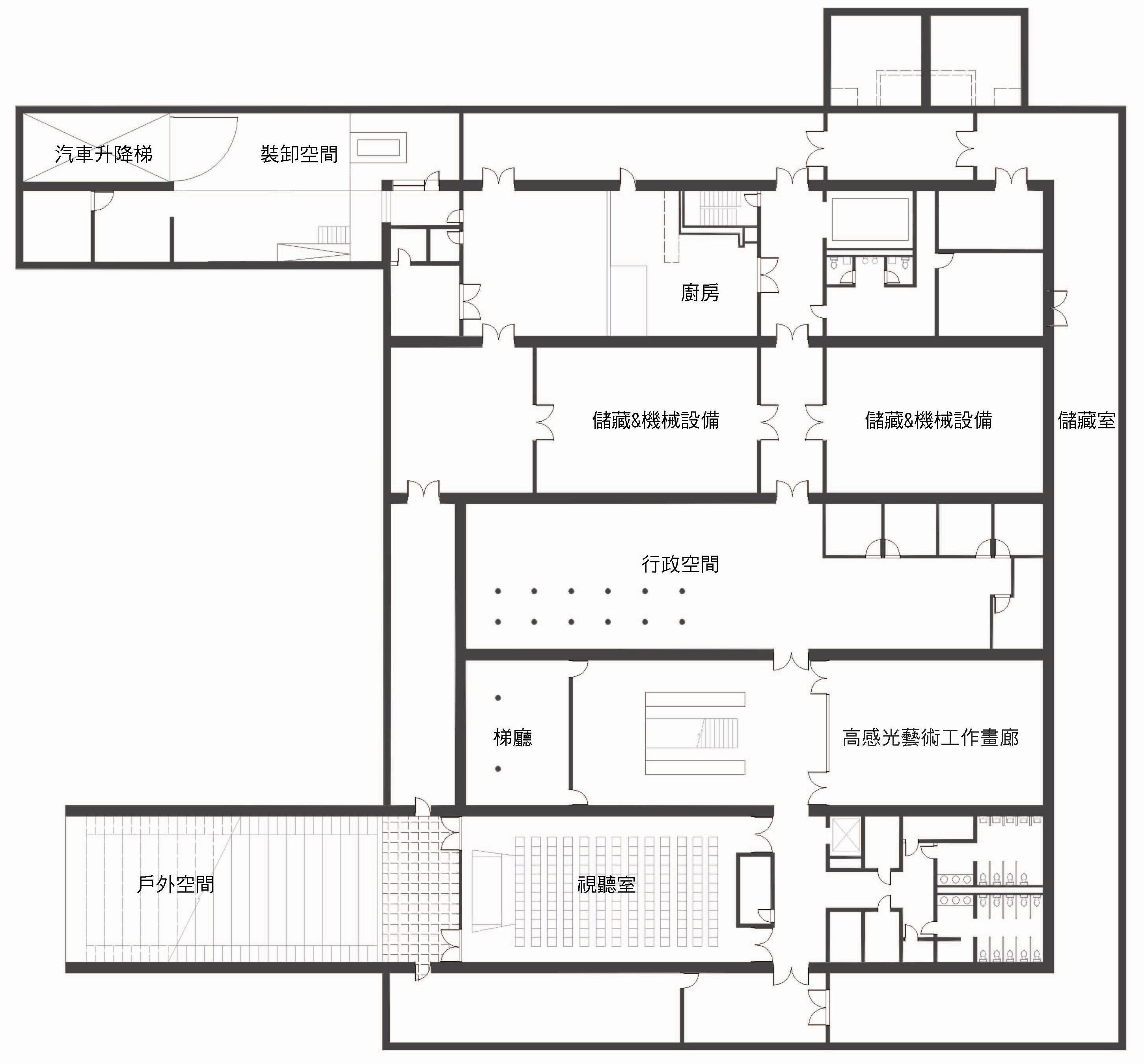
B1 Plan

¡@

Plan Section