¡@

                                         ¡´ ARCHITECTURE  ¡´ PROJECT  ¡´ PLAN  ¡´ SECTION  ¡´ PHOTO  ¡´ COMMENT  ¡´ COPYRIGHT

¡@

¡@

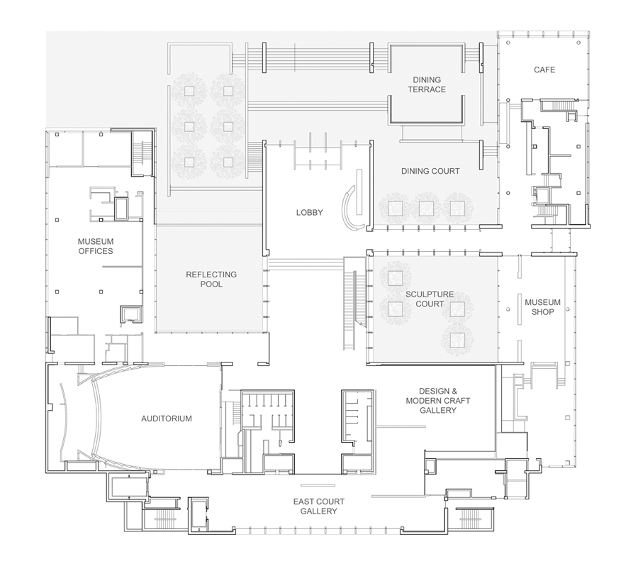
¡´ 1F

¡´ 2F

¡´ 3F

                                          

¡@