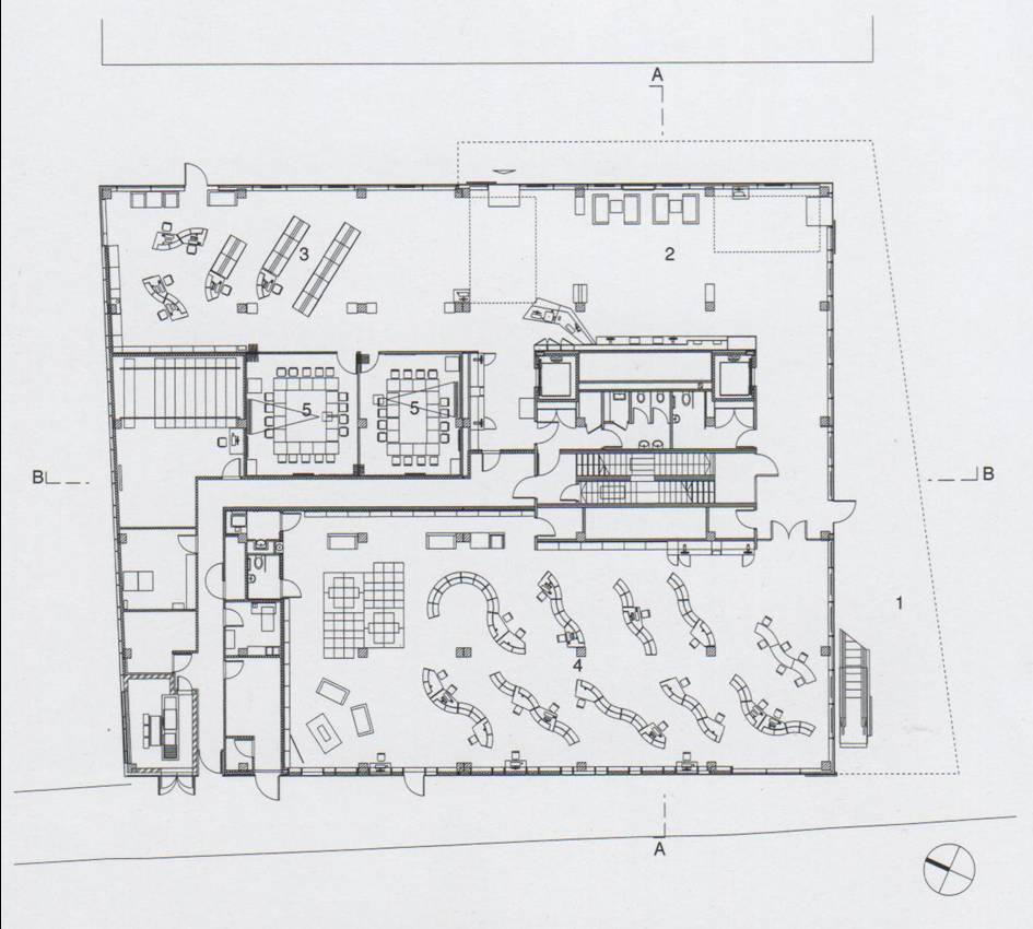
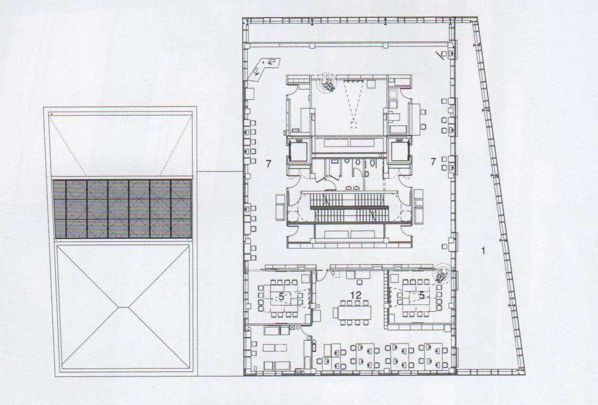
白教堂路多功能圖書館相關設計圖
1.一層平面圖 2.二層平面圖
3.三層平面圖 4.四層平面圖

5.五層平面圖

 

 
6.A-A剖面圖 7.B-B剖面圖
8.南向立面 9.北向立面
回首頁