作品分析
Sant’Elia
Nursery School(Como,1935-1937)
建築類型: 托兒所
建築材料:鋼筋混凝土
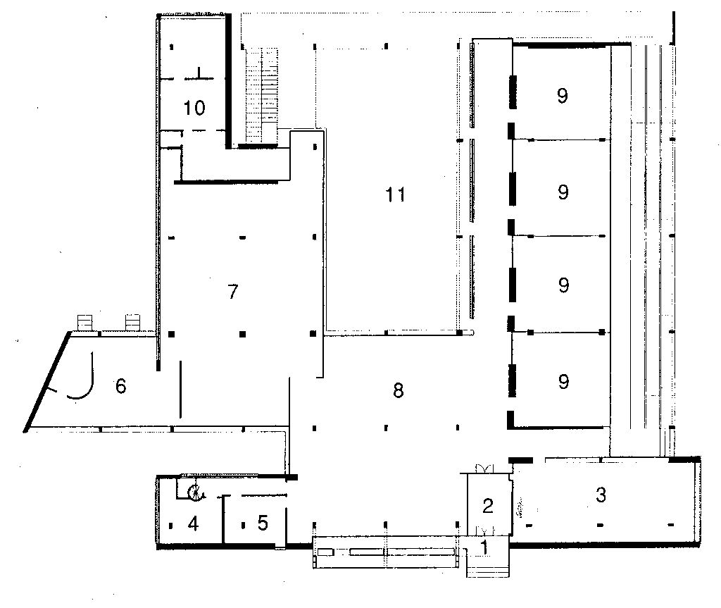
Sant’Elia托兒所位於兩條道路的交角處,是完整街廓中的一角,基地形狀是一塊不規則的四邊形(圖2)。整個建築物的機能配置非常明確(見圖3、圖4):基地南半部是教學空間包括四間教室;西北部是餐廳空間;圖面東方有一通往屋頂的坡道;西方是主要入口門廳和一間休養室。這些空間成〝ㄩ〞字形排列,圍塑出中庭空間。
主要的入口選擇在西南方兩條道路的交角上,入口處有一弧形的雨被。雨被旁是一大片玻璃帷幕,Terragni在這片帷幕前設計了凸出的框架,這樣的設計使幼兒被父母送到托兒所後,不會立刻地被實牆遮住視線,減輕幼兒和在門外父母之間的隔離經驗。這樣的設計允許幼兒清楚的看出到街道,
避免和父母突然的隔離。相同的設計概念延伸遍及整個學校,
從符合幼兒尺度的衣櫥、書桌、到盥洗室,甚至開窗的方式等,
Terragni細心的從使用者的角度出發作設計。
四個教室位於整個基地的南半部,教室之間的活動牆面都可以被展開,使得四間教室可以依需要而自由的調整空間量;每個教室都連接著半戶外的平臺,而平臺上設置著混凝土構架(圖7)可以被上帆布遮蓬遮蔽。整個學園內幾乎都是玻璃牆面(圖9),提供視覺的穿透感,而且玻璃牆可以隔離某種程度的雜音,經過層層的隔音後,中央的庭院變的安靜而舒適。此外,這些玻璃對於幼兒的身心健康有極大的好處。
|
圖片集 |
||||
![]() |
![]() |
![]() |
![]() |
![]() |
| 圖1 透視圖 | 圖2 配置圖 | 圖3 平面圖 | 圖4 平面圖 | 圖5 中庭 |
![]() |
![]() |
![]() |
![]() |
![]() |
| 圖6 室內透視 | 圖7 南側外觀 | 圖8 走廊上的水平橫帶窗 | 圖9 室內空間 | 圖10 餐廳與中庭之介面 |
![]() |
![]() |
|||
| 圖11 模型 | 圖12 模型 | |||
建築評論
雖然主要入口在中央方向偏南,但這件作品隱約還是可以發現依軸線配置的關係:對著入口的是一條走廊,所有的空間依附走廊兩旁配置。這個建築物中最特別的就是圍塑出〝中庭〞空間(圖5),這樣的設計方式,似乎是從當地傳統的空間模式演變而來,後來的〝Casa
del Fascio〞中也可以發現。另外,因為顧及幼兒心理問題,所以整個室內的隔間幾乎都是透明玻璃,這樣的設計不僅塑造出現代建築才有的穿透感,更有利於幼兒的身心健康。從使用者的尺度出發的設計方式,使得建築物更加便於使用。坡道、大片玻璃帷幕和白色建築量體,一直是現代建築的語彙;我們可以在這幢建築發現到Terragni在理性主義運動中的主張:以傳統建築的精神為架構,運用現代建築的語彙來表現。
參考資料
1. Thomasl.Schumacher,(1991) SURFACE & SYMBOL Giuseppe Terragni and Architecture of
Italian Rationalism,Princeton Architectural Press,p139-170。
2. Wikes, Joseph A. ed, Encyclopedia of Architecture, New York : (1990John Wiley & sons)