作品分析
Casa
del Fascio(Como,1932-1936)
建築類型:辦公室
建築材料:
鋼筋混凝土
現在名稱:Casa del Popolo
法西斯館是在一個正方型中進行設計,它的高度是16.6
公尺,恰巧是寬度33.2
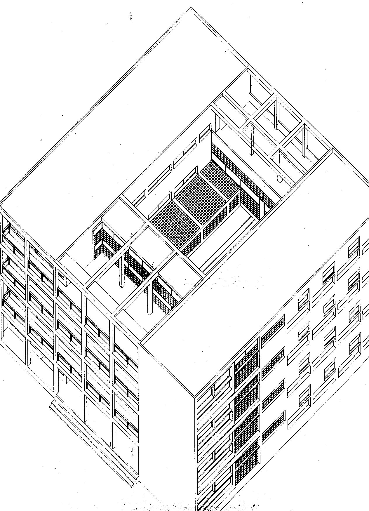
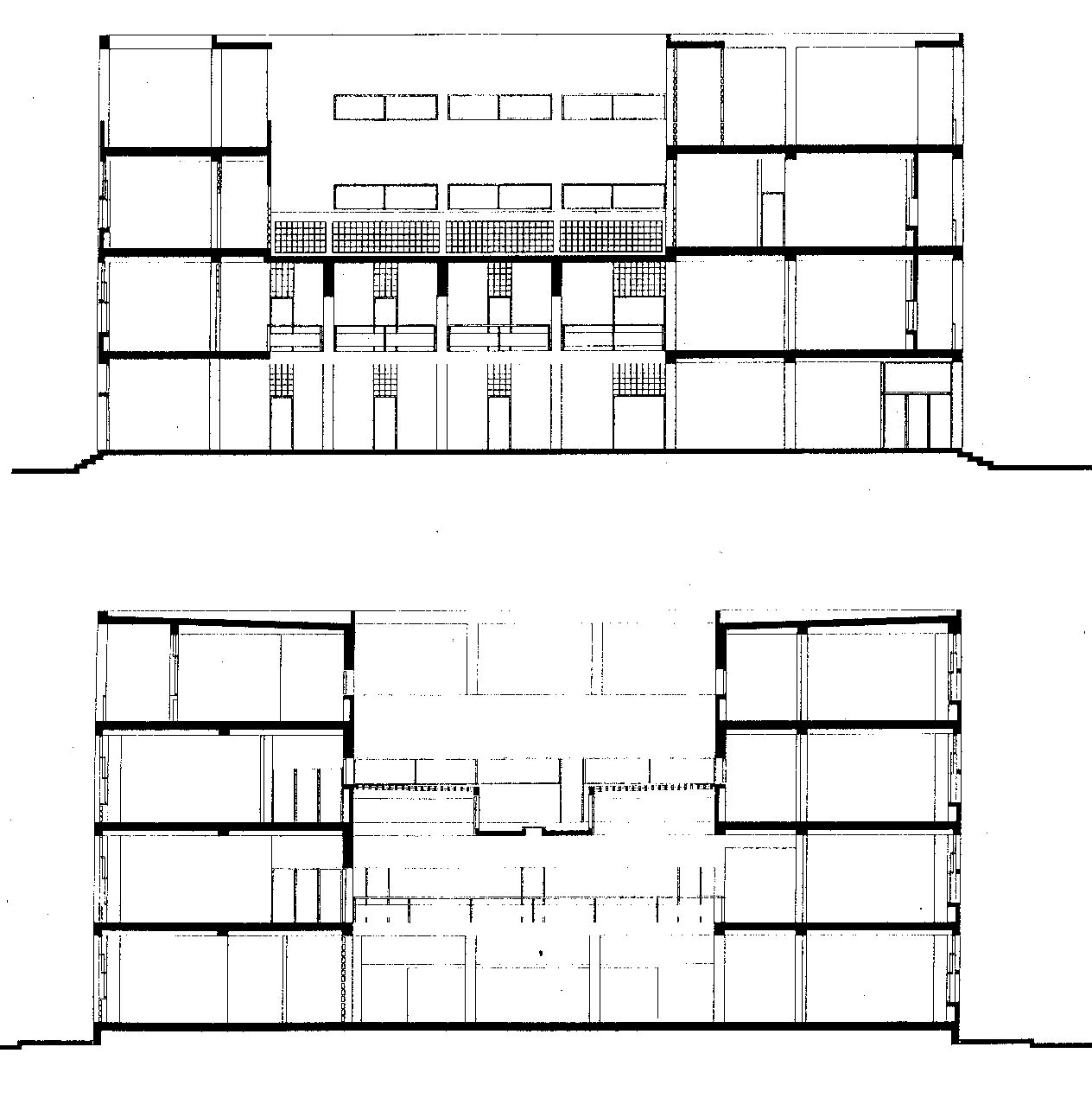
公尺的一半。這個半立方體表現出非常理性的幾何關係。經分割出立面,窗戶處理都是為了表現內部中庭,而且忠實的顯示出建築物結構系統(梁柱式構架)(圖5)。窗戶的分割亦與整體立面的對角線有著緊密的關聯性(如圖7)。
法西斯館內部有一個利用混凝土架上透明屋頂的大集會廳(圖8),而四週繞以迴廊(如圖9),內部為辦公室及會議室。有一個抬高的基礎線,特朗尼稱之為「抬高之平面」。
建築物利用玻璃門來隔離門廳與廣場(圖10),當玻璃門(圖13)以電鈕開啟時,中庭便與廣場連通,允許示威的人流從街上湧進室內;門廳上方使用鏡面天花(圖10),是希望反映出下方的梁柱構架,創造出一種無限梁柱構架的幻象。接著是在會議室的設計上,內懸巨幅墨索里尼肖像(圖14),而且另開闢一個專室紀念墨索里尼1922年的進軍羅馬。總之,這件作品是一個超越意識形態的考量所創造出的一種形而上的空間效果,整座建築如同一個連續性的空間矩陣,沒有上下左右之分。另外,建築物恰好配於一個歷史性的都市核心中,所以立刻創造出一個兼具技術性和紀念性的作品。
|
圖片集 |
||||
|
圖1法西斯館立面 |
圖2立面圖 |
圖3立面圖 |
圖4立面圖 |
圖5樑柱系統 |
|
圖6立面構架 |
圖7法西斯館立面分割 |
圖8 剖面圖 |
圖9 室內的迴廊圖 |
圖10 門廳與上方的鏡面天花 |
|
圖11 室內透視 |
圖12 室內 |
圖13 玻璃門 |
圖14 會議室內的墨索里尼肖像 |
圖15 會議室 |
|
圖16等角透視圖 |
圖17透視圖 |
圖18 平面圖 |
圖19廣場 |
圖20遠景 |
建築評論
法西斯館給予人感受到非常理性的設計邏輯:平面和立面都反映出嚴格的幾何關係;故意顯現出的樑柱構架,也理性的強調樓層高度的關係;立面的窗戶都在呈現內部中庭,機能性空間則圍繞在中庭的兩側。從平面圖上可以發現柱列呈現出的模距化,而柱廊的設計,則表現出空間的透明度與穿透感;廣場與門廳的結合方式,使整個空間的機能更富彈性。
在這棟建築物上可以看見許多的特色:
1.現代建築的特徵:模矩化的柱列關係、以簡單的梁柱構架當裝飾、忠實的反映內在空間。
2.古典的表現方式:立面上反映出嚴格的幾何關連性、中庭的設置是來自於傳統的城市樓房(palazzo)模式設計而成。
3.政治性的設計:建築物與廣場相接(可供獨裁者煽動人民的空間)、有著墨索里尼肖像的會議室、甚至於門廳內重複的柱列也顯現出一定的威權感。
由這些設計手法可以瞭解到特朗尼的非凡之處,是在於融合義大利古典的民族價值觀和機械時代邏輯性。
參考資料
1.
Kenneth
Frampton,蔡毓芬譯,(1999)
現代建築史,地景出版社,205-206。
2.
Thiel -Siling,Sabine
ed,(1998) Icons ofArchitecture :The 20th
Century.Mucnich :International Book Import Service,Inc,p62-63。
3.
Kenneth Framptom,賀陳詞譯,(1980)近代建築史,茂榮圖書有限公司,p353-354。
4. Thomasl.Schumacher,(1991) SURFACE & SYMBOL Giuseppe Terragni and Architecture of
Italian Rationalism,Princeton Architectural Press,p139-170。
5. Giuseppe
Terragni - Great Buildings Online
http://www.greatbuildings.com/architects/Giuseppe_Terragni.html