
Apartment
House with Le Corbusier¡¦s apartment at Porte Molitor 1933
«Ø³y®É¶¡¡G1933
«Ø³y¦aÂI¡G24,rue Nungesser-et-Coli75016 Paris
«Ø¿vÃþ«¬¡G¦í¦v¤½´J
³]p²z©À¡G
¨Ì¾ÚLe
Corbusier¡¦sªº»¡ªk³o´É¤½´J¦bporte
molitor¥¦ªº®e¥ú·Øµoªºµ{¦¡¤¤¦³³\¦h¥¼§¹¦¨ªº³¡¤À·í¦b¤Ú¾¤ªº«Ø¿vª«µ²ºc¤¤¡C¥L¸Õ¹Ï´£¥X·sµ{¦¡ªºn¯À¡¨¤ÑªÅ¡Bºñ¦a¡B²V¾®¤g¡¨¡A¦b«Ø¿vª«°ò¦aªº«á¤è¦³¹B°Ê¤½¶é¡A¦b«e¤è¦ì¸m¦³¥j¦Ñªº«Ø¿v«°Àð¡ALe
Corbusier±Nºñ¦â´Óª«±a¤J¨ì«Ø¿vªº¬[ºc¤¤¡A¦b¬Á¼þªº±c¹õÀ𤤽T©w¶§¥ú©MªÅ®ð¥i¥Hº¯¤J«Ø¿vª«¤¤¡C³o©M·íªì«Ø¿v®v©Òºc·Qªº¬Û²Å¦X¡AÀô¹Ò©M«Ø¿vª«¤@°_´£¨Ñ¤½¦@®a®xªºªA°È¡A¤]űo¤F²Ä¤@§å©~¥ÁªºÆg´´£¨Ñ¤F³o¨Ç©~¥Á·sªº¥Í¬¡¡C¬J¨Ï¦³³o·s½æÂIªº§Q¯q¡C
ªí²{¤âªk¡G
±q¶Ç²Î¤Ú¾¤³»¼ÓÀò±o¦Û¥Ñ¥LÌ©~¦íªº¦aªO©M¦a¤U«Ç¹ì«Ç¦³¤G±Æ¶}©ñ¦¡ªºªá¶é¡C¤£ºÞ¬O§_¤w¯Q¦«¨¹¦¡¬°«e´£Le
Corbusier³o¤½´J¥i¯à¦³³\¦h¶Ç²Îªº¥~Æ[¡AÄYÂÔªº°Ï°ì¹º¤À³W«h¿í·Ó«Ø¥ßµóÀð§âÄæ§ý°ª«×¤]¦C¤J¦Ò¼{¤§¤¤¡A¥H¤Î¶§¥x¡Bµ¡Ã®¡B¹j¶¡ªº§G¸m¡A¦]¦¹¡A²Õ¦X¦b³]p¤W¨Ï¥Î¬Á¼þ¿jªº·sª«½è¡A¨Ï¬Ý¨Ó¦ü¥G¦³·s©¬©Ô²Ä¶ø¦¡ªº·®æ¡C¦Ó¦b¥~Æ[¥¿±ªº¥¿Å¹ïºÙ¤£¬OLe
Corbusier¡¦s¸g¨å¼é¬y°Ï§O®t²§¡A¦ý¬O¥Lªí²{¥X¥L³æ¤@·®æªº¨å«¬«Ø¿v¡C¦Ó½T©wµ¡¤á¹j¶¡ªº¤Ï¼Ð·Ç¶ê¬W¤¤¤ß©M¼Ó±è²Õ¦¨ªº¤£¹ïºÙ¤]¥]§t©ó¥Lªº·®æ¤¤¡C¦b¹ï³õ©Òªº¥~Æ[«ØÄ³¡A«Ø¿v¾Ç¤]¥]§t¤F¶ê¬W¤¤¤ß½uªºÅܧΡAµ²ºc¦V¤Uªº§G¸m¦w±Æ¡A«Ø¿vª«ªº¤¤¶¡³£¬O¤@ºØµ¦²¤¡A¤¤¤ß¶bªº¦ì¸m¯à°÷³Q¼d¸Ñ¡A³q±`¬O³Q¥Î¨Ó«·s¸ÑÄÀ18¥@¬öªk°ê®ÈÀ]ªº¡C¦bPorte Molitor´²¨B³õ©Ò¦±½uªºn¨Dªñ¦ü©óÅs¦±ªº¶ê¬W½u¡A«Ø¿vª«¤º³¡²`³B¶ê¬W³QÂಾ¨ì¤¤¤ßªº¦ì¸m¡A¦bÅs¦±¤§«á¡A³o´²¨Bªº³õ©Ò¦û¥Î¤F¤jÆUªº¤¤¥¡¡A¦b¨å«¬¦aªO¤W¡A¤¤ä¶ê¬W¨Ï¤¤¤ß½u½ü¹ø¤À©ú¡CÅs¦±¬O¬°¤F²Å¦X¶i¤J¸û¤jªº¤½´JªùÅ¥¡AÂàÅܦb¥~À𪺳sÄòÅs¦±¤W¡C³oÓ¶ê¬W¼Ë¦¡¦b¦a¤U«Çªºp¹º¤¤¡A´N¬O²{¦b©Ò¦³ªº¶ê¬W¡A³o¸Ì§Ú̬ݨì¦p¦ó¦A¼sÁ襤¶¡¹j¶¡¤¤¨Ï¤@¹ï¶ê¬W¦bµ²ºc¤¤½u¤ÀÂ÷¡A©M¦p¦ó±N²Ä¤G¹ï±À¦V¹q±è®Ö¤ßªº¦ì¸m¡CµM¦Ó¶ê¬W¤Ï®g¡A¨Ï±o¤jÆU¤Ï®g¥X¤¤¤ßªº¿ùı¡A±q¤@¶}©l´N§iª¾¥þ³¡ªº°ÑÆ[ªÌ¡A·í¥L̪uµÛÀ𲾰ʦV¤jÆU¤¤¤ß¶ê¬W«e¶i¡A¶Ç¹F©x¯à¤O¶q¦b¤Ï¹ï·Q¹³¤¤¤ß½uªº¦X²z±±¨î¡C©M¶É±×¦a±¤@°_¡A¶ê¬W©MÀð»â¾É¨ì¤@Ó±q¤W±¨ì¤º³¡ªÅ¶¡¡A·Ó©úªº³õ©Ò¡B¥ú½u´²§G¡C³o¨Ç»P¥@¹jµ´·t²HªÅ¶¡¡Aì©l«¬¦¡¶}¦bLe
Corbusier«Ø¿v©Møµe¤W¦b¯B²{¡C¥L̰²³]¦b¥L¸û±ß®É´Áªº§@«~¤W¥[±j¤F«n©Ê¡A¦A1940¦~¥Lµo²{¤F¤@ºØ¬Û·í¤ßÆFºë¯«¤W¦ÛµM¤O¶qªº´yø¡A³o¨Ç¦b¥Lªº¤@ºRight
angle¸Ö¤¤»¡©ú²{¦b¾B»\¤F¤jÆUªºÀð¡A³oÓ¦Û·|¦³¤@Ó«nªº¦a¤è¦bLe
Corbusier«Ø¿vª«¤½´J©M¿ýµ«Ç³»¼Óªº³]p¤W¡A¬Á¼þªº§Þ³N©M¦³§Î¿jÀ𪺹ï·Ó¡A¿jÀð¬O¨S¦³¾B½ª©M²ÊÁWªº¡Cµ²¹êªºV¦æ¤ä¼µÂIªº¦a¤U«Ç¡A¬O¶l»¼¤¤®ü¥»¦aªº«Ø¿v¾Ç±o¨Óªº¡A¾Ö¦³¦±½u¬üªº¼Ó±è³s±µ¤ô¥½u¡C
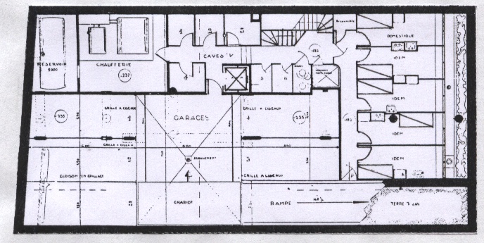
°Ñ¦Ò¹Ï±
¥±¹Ï ¥±¹Ï ¤@¼h¥±¹Ï
¥~Æ[³zµø¹Ï
![]()
°Ñ¦Ò¸ê®Æ
Ø
¬_¥¬¥þ¶°ªk¤åª©²Ä¤G¥U¡V1929~1934
¹Ï¤ù¨Ó·½
Ø
¬_¥¬¥þ¶°ªk¤åª©²Ä¤G¥U¡V1929~1934
½s¿èªÌ:¤G«Ø¤T ±i¦Ü©y A9013005