Roof plan


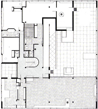
First floor plan

Second floor plan

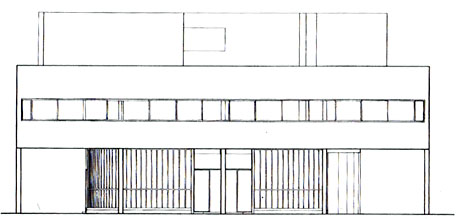
Elevation West

Elevation South

Section north-south,facing east

Section south-north,facing west

¡@