經過幾次重新嘗試修正早期方案後勒 柯比意對於Baizeau先生提出的明確問題,有了解決
方法,而這就是第二個方案了。他利用陽台和平屋頂來做為對應日晒和熱風的方法。
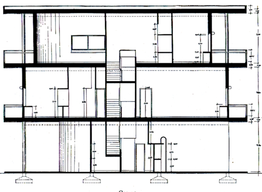
第二方案剖面及一層平面:
![]() |
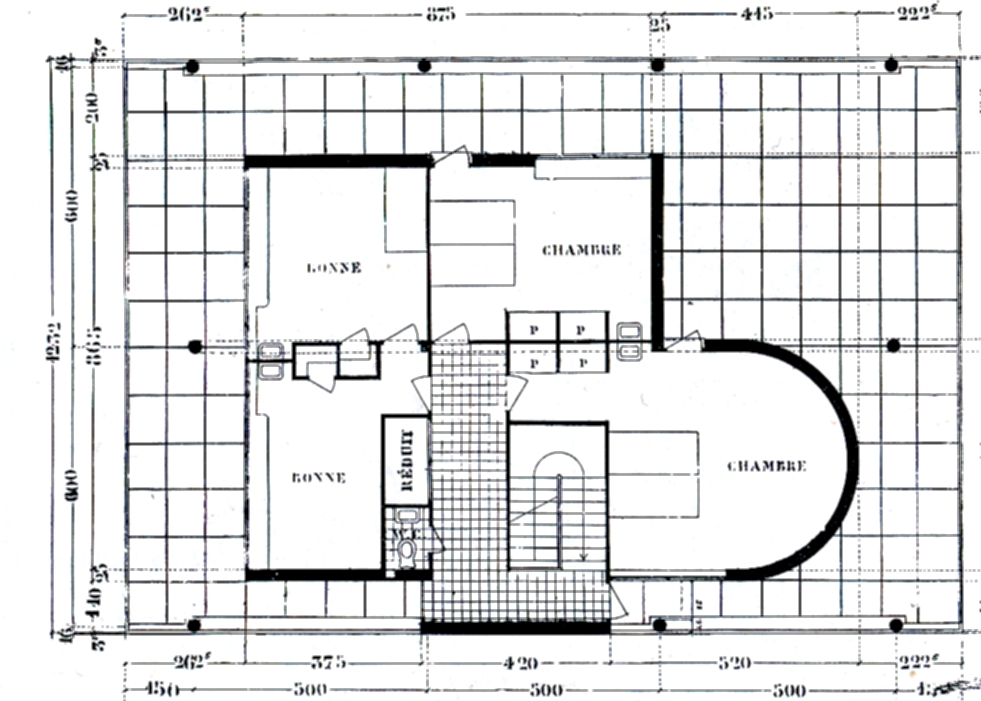
第二方案二層及三層平面:
![]() |
四大設計準則中的第三項:自由平面

在本案設計上他運用他設計四大準則中的自由平面的設計手法使建物四周形成了連續的陽台
,來對應熱風和日晒,這些連續性的陽台,在結構方面是則是利用混凝士骨架來支撐,和前
案不同的是,因為這些骨架,建物變得更輕盈了,開窗大多是遵循著他水平帶長窗的堅持。
這樣的設計比起前案要務實得多。
參考資料:
柯布全集 1910~1929