二建四 A8913015 蘇榮富
![]() |
![]() |
|
Maison d'artiste〈Artist's Studio〉.sans lieu. 1922. 藝術家系列化住屋計劃案─1922。
這是柯布系列化的住屋計劃下的一個專為藝術家設計的住屋形式,在 能降低成本的系列化系統構想中,運用了一個7MX7M的系統模矩 ,並運用分割的手法來進行室內空間的可能型態。
在系列化的前提下,為了始藝術家能居住在明亮的大工作室中,刪除 了所有隔牆和房間的門以減低成本,運用建築手法減少房間的面積並 降低其高度。住屋將由一根獨立的柱子支撐,柱子為中空的鋼筋混凝 土結構,隔熱效果良好的外牆材料為壓縮的稻草,在外部覆以5公分 的水泥噴漿,在內部則覆以石膏。整幢住屋內外只有二根柱子,對角 線分割的夾層使得天花板能在整幢房子裡自己發展,牆面也展現其最 大尺度〈外牆7MX4•5M〉,由於此對角線分割的夾層更產生意 外的尺度感;7M的小住屋竟能產生10M的視覺效果。 |
![]() |
| 室內透視〈對角線分割出的廣大空間尺度〉。 |
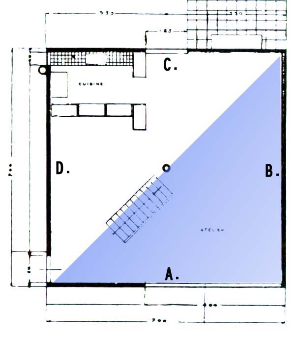
![]() |
| 地面層平面圖〈藍色部分為工作室〉。 |
![]() |
| 夾層部分平面圖〈藍色部分為工作室挑空〉。 |
![]() |
| 對角線長向剖面圖〈對角線約10M〉。 |
|
文字及圖片參考資料摘自《邁向建築》柯布著 施植明譯 田園城市發行 86年2月初版 |
| 3D模型模擬 |
![]() |
![]() |
![]() |
![]() |
![]() |
![]() ![]() |
![]() ![]() |
| 室內外各向角度的模擬。 |