Clayton county library (Jonesboro1986-88)

建築類型:公共建築

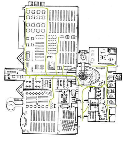
  Clayton圖書館位於喬治亞州的Jonesboro。Jonesboro 位於Hartsfield國際機場的東南端與Tara之間,是個小型都市。高架鐵路軌道沿著當地主要的街道而建。軌道的兩側是住宅。從一側的住宅入口﹐無法看到街道另一側的住宅牆上的門窗。圖書館的空間組織就是利用這種“鄰居在旁邊卻保有相當的私密性”的概念設計而成。圖書館的設計著重在創造私人性質的空間,而不是非常在意這些局部空間的整體性。所有的空間被嚴謹安排在模矩的格線上。圓桌區特地被強調出圓的形狀,是中央空間的組織元素。管理區彼此接近, 而且稍微遠離主要的書架區。如圖1所示,所有空間藉由水平的主要動線進行串聯,由中央的主動線再分歧到南北部分的公共閱覽區,人們能在其中寧靜的閱讀。

建築物的主要的正立面在北方,鋼樑構成的出入口上有標示為 "圖書館"的文字(圖5)。正立面採用白色和黑色的而有皺摺紋路的金屬面材。而且外部鑲嵌玻璃在夜晚時會產生白熱的效果(圖3)。 建築師希望創造建築物來表現社會的旅行。而北向立面圖的左部份表現出向天空延伸的翅膀。所有的立面圖都來自於肌理與色彩的趣味運用。圖書館將結構外露,使得內部空間獲得倉庫效果。承重牆主要被配置於到結構的邊緣上,使得室內獲得完整而開放的大空間。(圖6)

圖書館被視為小型社區中可以聚集人群的地方。它反映人的個性和他們能在公共空間獨處的希望。獨處的空間由許多的凹室和專為一、二人設計的空間所構成。建築物利用高大而開放的室內空間,以及外露的鋼梁, 和建築物的紀念尺度,來表達其公共性質。有強烈的軸線性將訪客由入口引導至兩倍高的主要的藏書空間。圖書館不提供能夠使訪客可以安逸的坐著閱讀數小時的空間,它寧可提供給專業人士的使用。圖書館內部有著些許的嚴肅氣氛。所有的書架以高效率和合乎邏輯的方式去管理。設計者也預期使用者的使用行為。

圖1 一層平面圖 圖2 立面圖 圖3 夜景 圖4 建築物入口
圖5 圓桌區 圖6 室內空間 圖7 建築物  
 

參考資料

1.Tzonis Alexander,(1995) Architecture in North America since 1960 / Alexander Tzonis, Liane Lefaivre, Richard DiamondLondon : Thames and Hudson, c1995,246-247

2. Scogin Elam Bray

http://gladstone.uoregon.edu/~jwalt/Precedent/site.html