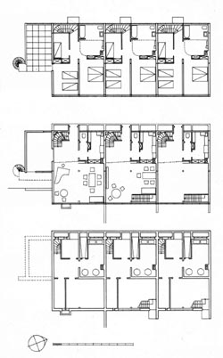
德意志工藝聯盟白院社區住宅 1927

Terrace houses, Weissenhofsiedlung, Stuttgart, 1927


by Mart Stam

1926年,在Mies 的邀請下Stam 參與了這次工藝聯盟的展覽。Mies 希望Stam 負責一棟三個居住單元相連的集合住宅,同時在信中對Stam 提到:

在這個展覽中,現代主義建築師必須藉由建築物表達他們對現代主義的詮釋,尤其重要的是,房子的機能是操作的核心,要盡可能的應用新的建造技術。

 

 

●這棟房子(House 28,29,30)的主要結構體及其中兩間的室內設計由Stam 負責,另一間的室內(House 30)則由Marcel Breuer 擔任設計。

●在空間機能上,地下室為一些儲藏室及設備(兩間可通往戶外),一樓則是客餐廳、廚房,二樓主要為居室。

●透過Stam 的觀察,德國人的生活方式有一些特別的習俗,例如在屋子裡洗衣服、醃製蜜餞、需要儲存冬天的食物等等,這些不能省略的家務Stam 卻認為應該廢除,婦女應該放棄這些費力的工作,多花注意力在先生、小孩的身上。所以Stam 希望房子盡可能設計的很簡單,不會有煩人的打掃工作、多用洗衣機,透過三個居住單元的結合,許多的家庭工作可以合起來做。

●Stam 在這個案子中也尋求可以快速建造的標準模式,在經濟的考量下,使用石造建築,外牆再覆蓋輕質混凝土的外皮;以共同壁的方式共用結構,節省造價。

● 室內的傢俱甚至樓梯,多使用鋼材,也放置了許多Stam 自己設計的懸臂式鋼管椅。



參考資料︰

1. 蔡毓芬譯(1999)現代建築史,pp.129, 132-136,141,163,台北:地景。

2. Placzek, Adolf K.(1982)Macmillan encyclopedia of architects,pp.119-120,New York:Free Press。

3. Julier, Guy.(1993)The Thames and Hudson dictionary of 20th century design and designers,pp.180,London:Thames and Hudson。

4. Sharp, Dennis ed.(1991)The Illustrated encyclopedia of architects and architecture,pp.146-147,New York:Whitney Library of Design。

5. Kirsch, Karin.(1989)The Weissenhofsiedlung :experimental housing built for the Deutscher Werkbund, Stuttgart, 1927,pp.168-175,New York:Rizzoli。