1975 PA technology laboratory PA科學技術研究中心

年代:1975
地點:London, UK

本案例為PA科技位處英國的總部。主要空間需求為發展顧問研究室與服務室辦公室。
最初Rogers希望採用無柱拱棚結構,並採用與景觀結合的開放式地下室,但這想法最終因為客戶希望使用較保守的方式而未落實。

量體建立在混凝土樓板上,並使用預鑄十字柱支撐填充牆與受壓的皮層合板及頂板鋼架。皮層材質括玻璃的與可自由替換的隔熱夾板。
内部空間採用靈活的分區,可依客戶需求自由變動。

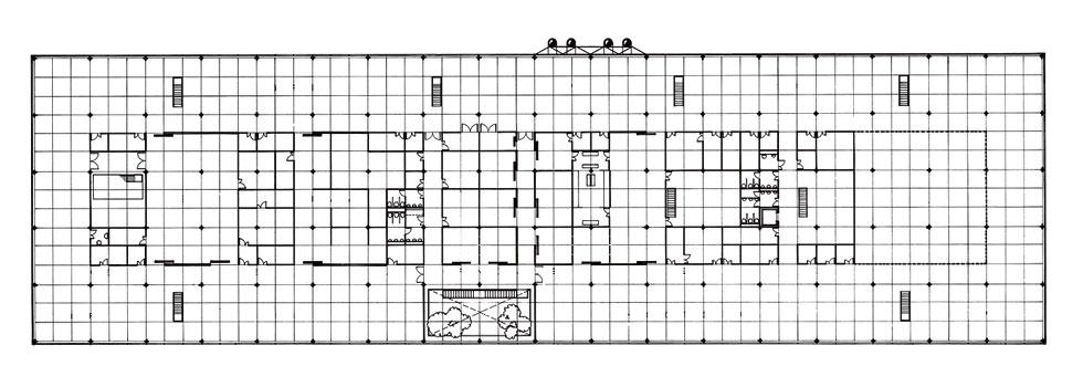
1977 Centre Georges-Pompidou 龐畢杜藝術中心

年代:1971-1977
地點:Paris, France

龐畢度中心為Richard Rogers 與Renzo Piano 合作的案子,內部空間機能包含了公共圖書館、現代藝術博物館、工藝美術設計中心和音樂研究中心四個部分。地下層與街道、廣場同一高度,包括會場、劇場、放映室、商店、招待和展示區等公共區域。
在公共區域的下方是機房和儲藏室。廣場下方則是停車靠或停放公車、貨車、汽車的地方。地上建築結構包含各項藝文活動使用的開放式樓層、戶外平台和行政管理部門所佔用的空間。

整座建築分成13個跨度,由28根800mm圓形鋼管柱支撐。
每層樓板尺寸170公尺x48公尺,兩列柱又之間用鋼管組成的桁架樑承托五塊大型開放式樓板樓板。各樓層之間的展示區沒有固定的垂直隔間,是一大片的開放空間,裝有活動式隔屏,管線則從天花板或地板穿出,以免限制彈性使用的可能。

走廊、管道、防火梯、電扶梯、電梯、柱子和繫件等一般會妨礙空間流通之服務管線均安置於建築物外側,設計者曾設想連樓板都可以上下移動,來調整樓層高度,但未能實現Rogers 說戶外梯的設計,不是為了造型而造型,是讓人能領略廣場的活動。
1986 the Lloyds of London

年代:1978-1986
地點:London, UK

本案例現為倫敦經貿中心,由Richard Rogers操刀設計,玻璃鋼骨結構的矩形平面,外圍有六個衛星式塔樓,主要提供電梯、洗手間以及其他服務空間,設備空間也是設計在屋外。因為被服務的空間是永久存在且較為不變的,而服務空間則是在短期內,可能需要保養、更換,因此本案服務空間採用預鑄的組裝方式。

內部中央是一個挑高190呎的中庭,並搭配拱形的屋頂。約有十二層樓的中庭柱廊,周圍採用玻璃格窗,增加採光,使室內更加明亮。

玻璃帷幕牆包含三層玻璃,作為通風室,有效助於建築物通風散熱、增加能源效率。
空間構件的模矩化,加速了施工的工期,達到現代所追求建造的效率與經濟效益。
1998 波爾多法院

年代:1992-1998
地點:Bordeaux, France

本案為一建築增建競圖案,由Richard Rogers贏得,建築設計成一系列清晰的建築物,將一法庭設計成漂浮在半空中弧形錐頂狀的獨立量體。
並且使用了混凝土、鋼構、玻璃、木質等不同材料,與基地對面原有歌德式教堂相互對應。進入法庭需先經由地面層透過跨架於水面上的階梯而上,宛如神聖的儀式,強調法院的神聖性。

法庭的基座,由樹幹狀的混凝土支柱撐,外部在以條狀實木包覆。搭配輕巧波浪形鋼構屋頂,流動覆蓋法庭四分之三高度以下的空間。法庭特殊的造型考量空間包被的領域感與空氣的自然流動,較低的高度低溫進氣,頂端高溫排氣,而頂部的天窗則提供了府院內部來自北向的自然採光。

法庭大廳及公共空間與側翼五層的法官辦公室清楚分開,法官從辦公室經由開放式的空橋由後門進入法庭。
