07

|Brazilian Museum of Sculpture

1
2
3
4
5
6
7
8
9
H
這個博物館案子原先要求的展覽內容是關於雕塑和生態的博物館,從概念圖中,看到的是一個飄浮的結構物,造成了有遮蔭的空間。而這個空間則和兩旁的樹林相連,使得一個有休憩品質的開放空間與周圍的自然環境有了連結。再一次可以看見,Mendes da Rocha在結構物與周遭地景之間互動的一種景象的嘗試。
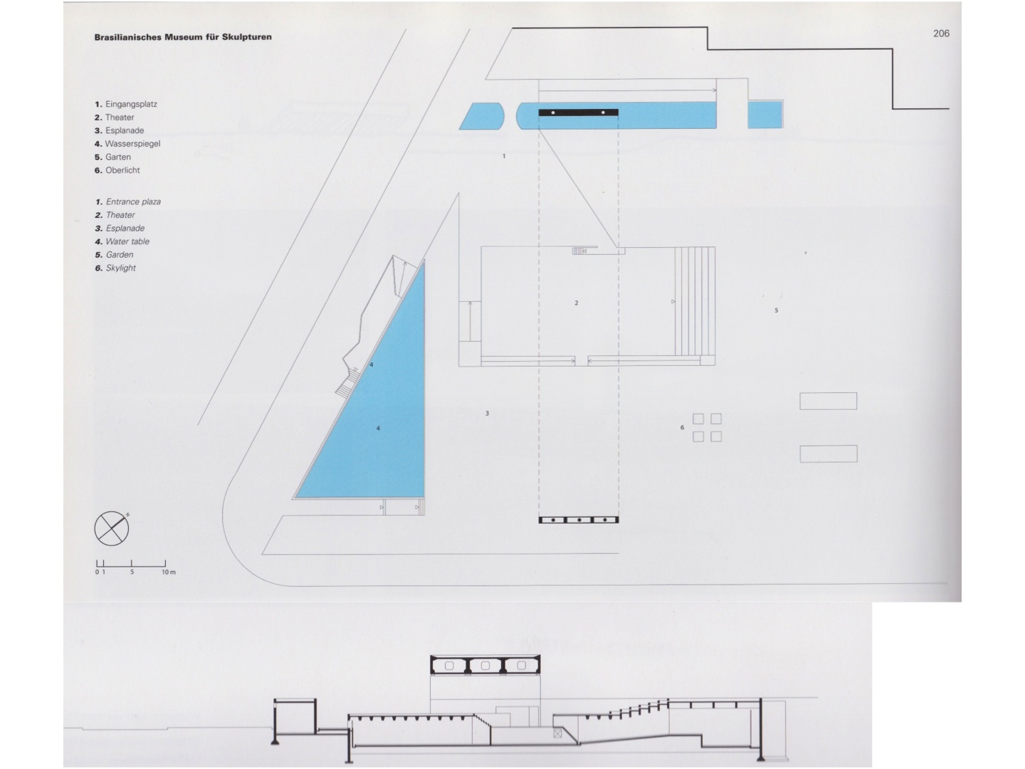
基地的西北側為音像與影像博物館,透過廣場以及一個巴西特有種植栽組成的綠帶作為可以休憩的開放空間,藉由活動將兩個博物館串聯起來。雕塑博物館的入口選擇設置在巷道尺度較窄的西南側,而不是東南側的主要幹道,一面是應街道向北遞降的地形,創造了一個比廣場低一個樓層的入口,一面是使進入博物館的動線集中在側邊,保留開放廣場休憩性質的完整性不被動線切割。
從街道上,看建築的外觀是一個大跨距的結構體,地下為開闊局部有遮蔭的廣場空間。結構物內部不具空間機能,比較像是整個基地之中畫面的營造;透過六十米左右的大跨距誇張量體,結構行為簡單而直接的形式,可以看出Mendes da Rocha從大阪世博巴西展覽館之後,一直在嘗試的結構物與地景之間景象上的交互關係;與機能意義相比,Mendes da Rocha的建築象徵意味更為濃厚。
在地面層建築師設置了一個下降的階梯式廣場在整個平台的中央,作為演講、聚會所;透過不同高程的空間區分出聚會、展示、通道等不同屬性,卻又在視覺上連結性強的空間;上方的結構體則使得整個地面層俱有戶外、半戶外的性質。主要的入口面則設置大面積的水池,和中央的結構體,基地與音像影像博物館之間的綠帶成為前後層次的結構與環境交互的地景關係。另外特別的是,Mendes da Rocha在北側入口處、下降的南側次入口各設置樓梯或是坡道去連結演講場,也可以由平台沿著可以當作座位的階梯抵達,多種的動線傳達出地面層的演講場對於Mendes da Rocha 有特別的意義。
內部展覽空間相較于地面層多樣的動線,機能與空間的安排是相對單純的;從主入口進入經過櫃檯,即可經過長廊抵達主要的展覽空間,相對到地面層水池位置的是室內演講廳,中央則是教室、辦公室、檔案室、等服務空間。
入口在這個案子之中依舊是隱晦的,延著漸漸下降的街道繞過水池首先會見到結構壁旁帶狀的小水池造景,以及結構體下方的開放空間,往內深入才會見到主要入口。此種入口的設置就如同大阪世博巴西館一般,建築給人的第一印象是結構體,以及其周圍環境呈現出的畫面,可能需要經過一點點地尋找,才會見到入口。
結構體下的平台層次
水池、結構體與後方植栽形成的地景關係
Mendes da Rocha 在雕塑博物館中也有許多的細部設計,在大跨距結構體的設計中,刻意的分離版與壁,以較小截面積的圓柱去做連接,形成有穿透性的接合設計,凸顯出結構體的力學行為,結構體因此有了自明性。除此之外,如同在Mendes da Rocha 自宅的案子中,工業化材料經過細部設計後,呈現出細緻的線條比例。
思維研究室 M10213034 林書賢 製作