前言

學院建築往往是校園建築中,最能讓建築師任意揮灑的地方,但同時也因為大學其對於社會結構變遷的力量極強,故其發展亦必隨之而分為數個階段,其成長的過程可視為一種有機的形態。這對校園建築而言是一種新的契機,對從事規劃設計的建築師而言也是一個重新思考的好時機。


(一)基地環境

自然環境
坐北朝南,東西向對於日曬以減少開窗之建築手法處理;面北則採大開窗面積以納入陽光,使室內空間明亮,減少人工照明。

 
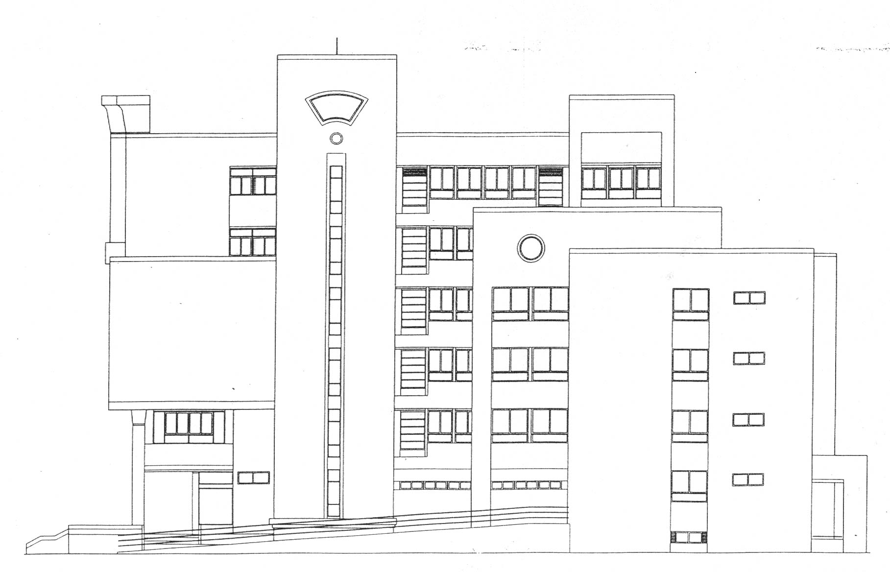
配置 西向立面圖 東向立面圖 北向立面圖

人為環境
校園建築紋理--- 探討其與校園中其他建築物在色彩、量體比例上及外部空間之呼應關係。就大環境而言,政大校區完整,建築物卻分布凌亂,新舊建築物同時並置,舊期校園建築未完全重建,近期建築風格有待確立,資訊教學大樓在政大校園中佔有著樞紐的地位,接近校門主軸,卻不生干擾,而能創造出自成一格的個性。在校園環境中行政大樓、資訊與教學大樓與中正圖書館皆位於校園中央位置,性質皆屬於全校師生經常使用型。

在量體分布上

行政大樓、中正圖書館量體較為笨重,資訊與教學大樓則呈L-shape配置,量體較為輕盈

材料使用上

皆以馬賽克為主

色彩上

以白色為基調,細部參雜以灰色調處理之。

 

校區配置

行政大樓

資訊與教學大樓

中正圖書館

環境的限制
基地正前方靠右面對行政大樓兩公尺高梯級並且有門主軸,靠左斜對開放空間引至運動場,左側上方與凹角之學校餐廳大門與梯級對峙,右側則為校門旁,正待規畫或改建的兩層舊建築物,綜合這種種的限制條件,配置於是產生。

分析本案採用 L 型配置:

優點:
1.不同機能之兩部份結合,留設出更大的開放空間面積。
2. L-shape的兩翼,分別遮蓋了兩側的舊期建築物,開放空間的部份面對行政大樓並可遠眺運動場,具良好視野。

缺點:
1.資訊與教學機能復合,在平面接合上存在一度程度的矛盾
2.立面語彙差異性大
3.L型配置概念使得空間彈性變小,電算中心部份空間安排過於緊密

 
校區配置

(二)造型語彙

將量體錯開,表現不同機能所反應的造型;在色彩表現上,使用與周遭建築物相同之基調,再適當的加入其他顏色表現出差異。我們更嘗試從開口部來探討其量體虛實對比,以及是否從校園環境中借用造型語彙,另一方面希望從立面圖中找出面對中庭與面對校園空間之不同處理手法。

 
資訊大樓部份 立面元素類型

立面元素類型
教學大樓部份

 

電算中心立面語彙繁複
拆解教學大樓與電算中心之立面語彙之發現,電算中心立面語彙由幾個基本的元素加以組合搭配之外,同時也加進許多中國古典建築語彙與留白的概念,反而使得語彙過於繁複,不如教學大樓的立面感覺明快。

 
電算中心樓梯 教學大樓樓梯

() 空間組織


西向入口 電算中心入口空間大廳 電算中心入口

 

 

兩個入口空間approach的方式十分相似皆是

外部空間 階梯 中介空間 入口

在教學大樓的部分由一條走道引導至階梯上到平台之後,必須選擇上樓梯或是進入教室,因為入口空間的分配仍屬於人移動的行經路徑,所以若有停留會影響

動線的流暢,學生們比較不會選擇這樣的空間停留。

在電算中心的部分 入口平台門廳的設置及電子看板的設置,同樣空間使得無法停留。

 
教學大樓入口空間 教學大樓入口 地下一層教室

 

各層平面圖上來看,在空間上期望將教學及電算中心加以連結,但在平面表達上卻僅只能以一狹窄的走道加以連結,空間連結性弱,也更突顯了當初要把機能迥異的兩種屬性加以連結,所衍生的問題。

 
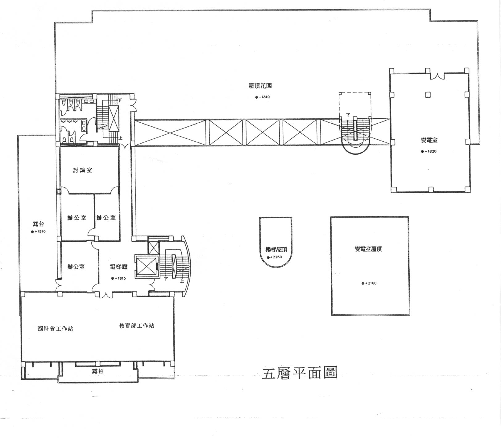
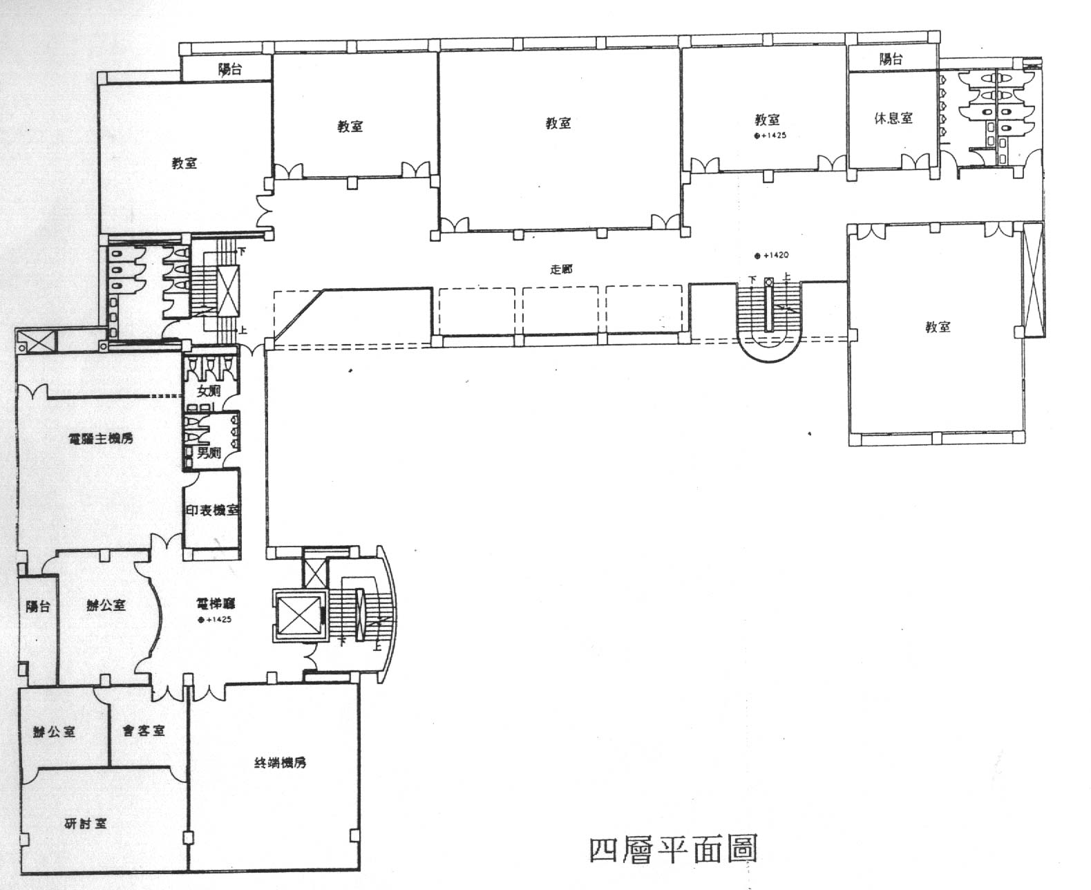
二樓平面 三樓平面 四樓平面 五樓平面

就建築本體計劃的角度來看

不論是教學大樓或電算中心的機能屬性,它所代表的絕對不僅僅只是設備、基本機能及空間尺度的滿足而已,而是對其機能之外的意涵賦予一種新的詮釋,並提出具有實踐力的提案。在這個個案中設計滿足了教學與電算中心的空間基本需求、具備了流暢的動線系統、地下一層充足的採光量、及足量的戶外活動空間;但卻忽略了在實際上校園活動屬性的配合、創造需求與顛覆傳統校園建築的空間形式。但我想這也可能牽涉到校方的配合度及限制條件的因素,這一點是比較可惜的!

 

() 開放空間留設

地面層開放空間
將行政大樓之開放空間與資訊教學大樓之開放空間連結,做有效運用;在設計手法上欲利用階梯、高差、緩坡及不同舖面,試圖促成活動多元化。但實際上,雖有較完整的開放空間之留設,卻因為缺乏座椅的適當配置及遮陰的大樹導致廣場上無法產生活絡的校園活動。根據觀察的結果,地面層廣場有兩層的高差,第一層外部空間有學生短暫停留,左側草坪及進入第二層右側都設定為無法進入及停留的屬性。導致實際可使用的外部空間面積變小,也是因素之一。

 
地面層配置

 

地下一層開放空間--- 與教室緊鄰企圖能與活動結合,但開放空間中的階梯階深太淺,也沒有座椅及其他設施的支持,以至於大部分的時候鮮少有學生使用,加上沒有適當的設施及活動的引入,使得地下一層的開放空間使用性較低。

 
地下一層平面

 

() 結語

事實上,校園建築最終的目的是在融合全體環境涵構的基因、使用者獨特的需求與基地條件之特殊際遇的因素,以創造出一個從原有之環境環構中,有機地生長卻又能夠別具風貌的活動場所,一方面保持著整體的延續性,而且也增添了其風采。這樣的環境設計觀,在本質上仍有其不 可否認的前瞻性。因此,在設計的過程中,若仍不注重整體環境品質,則非常可能成為一 個「Architecture Zoo」,而且是一個雜亂擁擠的Zoo!因此我們希望每一棟新的建築無論在造型或空間組織方面,都能進一步的協助良好的政大校園語彙成形,進而使原本脆弱的校園結構再度凝聚,形成一個的政大校園整體意象。
另一方面,也希望在這次評論的練習過程中,深深感覺到建築評論並不是一味指出別人錯誤及拙劣之處加以攻擊,這對實質環境的改善一點幫助也沒有,對建築師而言,也無法得到幫助;如果在客觀的分析內容上,能經由文字、圖表來提醒自己及建築師注意一些過去座設計所忽略的地方,進而在手法上做簡單的調整、或是觀念上的轉換,藉由這些分析及檢驗的文字及圖表審視自己,對未來從事實質環境的設計時,有更大的彈性及幫助,才是我們所樂於看到的!