|
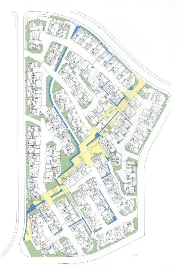
都市的開放 Openness towards the city コモンシティ星田 /1991-1992 構造:RC+鋼構造 圖片1-12參考書籍:『坂本一成 住宅―日常の詩学』 |
1.![]() |
2.![]() |
3.![]() |
4.![]() |
5.![]() |
|
| 山坡地社區住宅 | 山坡地社區住宅 | 2樓鋼構造 | 植栽設計 | 配置圖 | ||
6.![]() |
7.![]() |
8.![]() |
9.![]() |
10.![]() |
||
| 平立面圖 | 室內屋頂及開窗 | 半戶外空間屋頂 | 開窗設計 | 平面圖 | ||
| 11. |
![]() |
![]() |
![]() |
![]() |
![]() |
![]() |
| 立面圖 | ||||||
12.![]() |
![]() |
![]() |
![]() |
![]() |
![]() |
![]() |
|
立面圖 |
||||||
![]() |
![]() |
![]() |
![]() |
![]() |
![]() |
|