Plan  

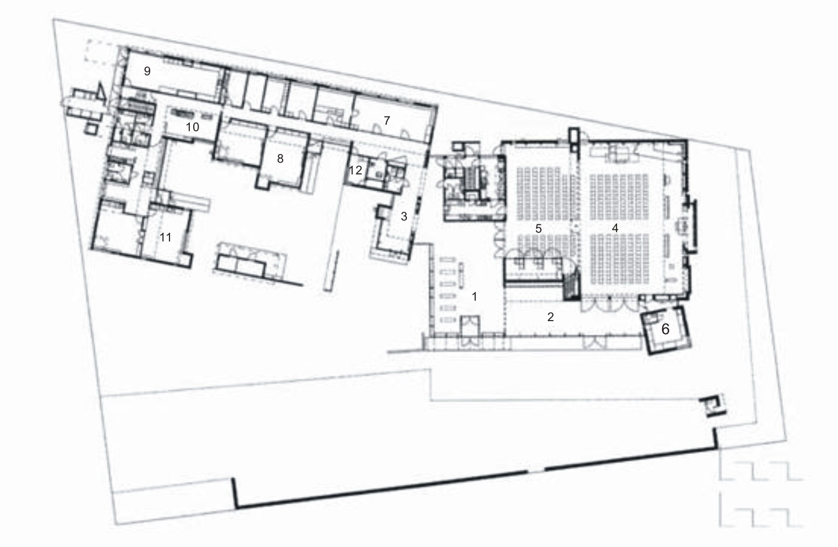
                                                                                                                                       1.入口大廳 2.棚架 3.前庭4.主要大廳 5.集會廳 6.教堂附屬室

7.辦公室 8.大人用工作室 9.青少年的活動室 10.兒童遊戲室

11.Staff room 12.Bridal room 13.廚房 14.鐘塔
 

 

                                                  

                                                                                                                                                                          cross-section

                                                                                                                                                           首頁

                                                                                                                 資料來源:http://www.archmuseum.org/galeri_resimler.asp?id=16&exid=4#1