各層平面圖
短向剖面圖
夾層平面圖

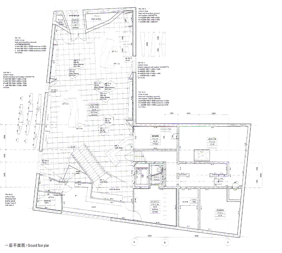
一層平面圖

二層平面圖(細部) 現況照片

三層平面圖(細部) 現況照片

七層平面圖

T1、T2正向立面圖和T3立面圖

T4.T5外立面圖、T6立面圖

外牆箍筋細部
現況圖 圖片1

工作模型- 東向立面圖

商場東向立面圖

商場西向立面圖
照片來源: "伊東豐雄作品集"/ http://www.forgemind.com/4images/categories.php?cat_id=213(各層平面圖、圖片1)