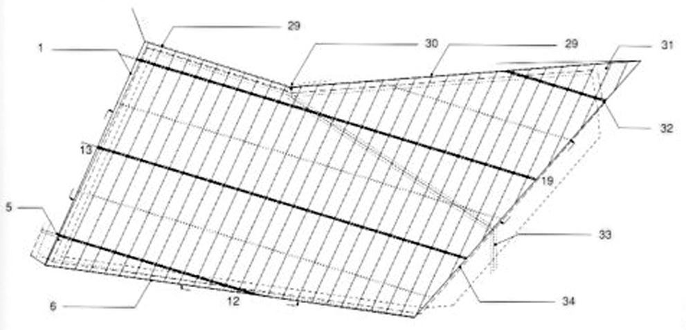
圖片來源: 1,3-8---DETAIL'07年刊

                   2---http://www.telegraph.co.uk/core/Slideshow/slideshowContent

                        FrameFrag.jhtml? xml=/arts/2004/09/15/lib.xml


 

 

 
 
 

 


 


 


 




 


 

 
1
4
2
3
8
7
6
5
東向立面圖
西向立面圖
北向立面圖
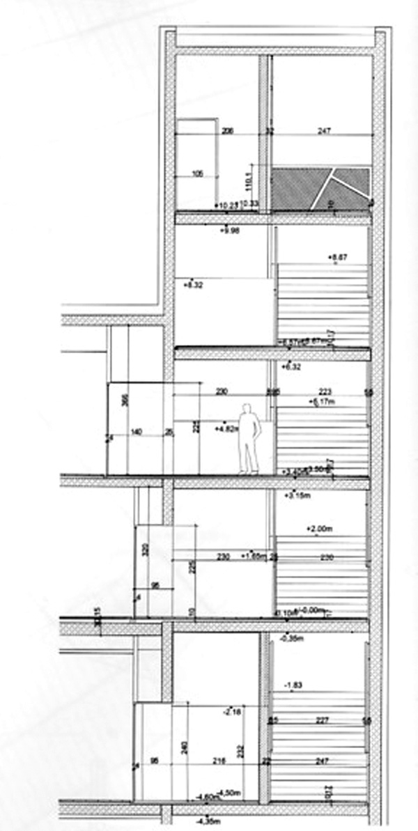
剖立面圖A-A'
短向剖面圖
1F大廳平面
剖立面圖B-B'

 


 

南向立面圖