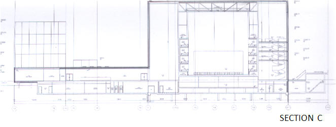
DE KUNSTLINIE Theater And Cultural Centre


 

  舞台剖面圖