舊建築再利用評論研討
台北之家—前美國大使館


壹、前言
1979年中美斷交後,我國政府以公告現值向美方購得,並由財政部國有財產局管轄;1994年2月經台北市工務局建築管理處正式核發拆除及建築執照,準備售予台灣證券交易所,改建為地上13層,地下5層之證券大樓。1995年,立法委員林濁水於議會質詢時指出:
基於維護保存文化資產的基本原則,舊美國駐台領事館係台北市甚至台灣眾多歷史建築中少數具有外交史意義的文化據點,且它是一呈現台美外交關係轉變意義的空間(林濁水,1995:160)。
因此,建議應朝向「外交史博物館」或其他形式之保存再利用進行規劃。雖然,該項提議並未獲得外交部認同,然仍經內政部於1997年2月20日指定為三級古蹟而獲致保存。
1.1 古蹟活化
從1979年到1997年的十八年間,這棟建築物處於荒煙蔓草當中,閒置多時,成為市定古蹟後,由台北市文化局從中斡旋,公告招標由賴朝俊建築師事務所.OL規劃團隊取得再利用工程規劃案,2000年,經台積電文教基金會贊助新台幣六千萬,將建築物本體修復後,委託【台灣電影文化協會】經營。經審慎規劃後,決定將其活化為以電影文化為主的藝文空間,該領事館定名為「台北之家」,原來的車庫則改建為「光點台北」電影主題館,並於2002年11月10日正式開館。
台北光點是少數撥放藝術電影的地方,其規模雖無法與一般電影院相比,但可說是「麻雀雖小,五臟俱全」又其位於古蹟保存區之內,濃濃的歷史文化氣息,有著一般商業電影院無法展現之藝術氛圍,開幕至今短短一年多,已成為成為為電影愛好者的新據點。n
1.2 為何需要修復與再利用?價值何在?
文資法第三十條將原「古蹟修復之管制」方式修改為「古蹟修復之再利用」一詞,即顯現出現代的古蹟保存運動的重新定位與永續經營的理念,在文資法公佈之前台灣對所謂的古蹟保存研究發展著重於修復技術之介入,古蹟就像一個展示品一般,僅供觀賞與民眾似乎有一層隔閡,古蹟是神聖不可侵犯的,由於文資法公佈與世界對文化解讀的重新定義,認為文化的意義是由於人去使用才能具有價值,不同以往將古蹟供奉在一邊的態度,及修復亦要再利用,本文以前美國大使館為案例,探討古蹟保存之價值與再利用之可行性以及新價值的產生。
1.3 台北之家---沉睡的睡美人
位於中山北路的前美國大使官邸,於民國六十八年中美斷交後,到八十六年的十八年間,這棟建築物處於荒煙蔓草當中,閒置多時,直至八十六年二月二十日,被指定為市定三級古蹟後,由本府文化局從中斡旋,依文資法文化創意產業之再利用思潮,希望將荒廢的古蹟重現並使其注入新活力,使這棟荒廢已久的小洋房,在台北市民的心中有嶄新的地位以及藉此更能彰顯其歷史文化價值。建築部分由台積電文教基金會贊助新台幣六千萬元,將建築物本體修復後,委託【台灣電影文化協會】經營。定名為「台北之家」,原來的車庫則改建為「光點台北」電影主題館,使荒廢二十二年的老屋得以再展風華。前任北市局長龍應台喻之為「沉睡在荒煙漫草的睡美人即將甦醒…」
台北之家成立至今,透過委託經營方式,每年約可節省人事及管理維護費九十萬元,九十二年一月至十一月亦創造民間商機五仟五佰餘萬元,除將古蹟活化外,並帶動本市中山區的藝文氣息,已成為中山北路的新地標。
貳、歷史價值
2.1 美國領事館
台灣的外國領事館始於清末,當時在台北、淡水、安平、打狗設有德國及英國領事館。美國領事館則始於日治時期,昭和元年(1926年)10月 8日,美國在臺北市御成町4丁目9番地,即本證物。該地基面積有 3古蹟所在地,建立領事館,之後一直沿用到戰後。為臺灣與美國關係之歷史見75坪,係美國政府向台灣土地建築公司租用,因此美國一度欲購地擁有,但為臺灣總督府婉拒。當時,台北御成町敕使街道(今中山北路二段),為城內通往圓山神社的主要道路,昭和16年(1941年)12月,太平洋戰爭爆發,兩國宣戰,領事館業務即日停辦。
二次世界大戰後美國在台北設駐台領事館,1949年國民政府遷都台北,於是美國在台設大使館,將本棟建築改為美國海軍武官處 (第三次增建) 。
2.2 市定三級古蹟
這棟建築物無論歷經多少政權變遷,一直擔任美國駐台領事館的角色,未曾轉為其他用途,為台灣與美國關係的歷史見證物。然而,隨著1979年中美斷交後,領事館於該年度 2月28日關閉,最後一任大使安克志離台,建築物始正式關閉使用。民國86年(1997)2月20日,被指定為市定三級古蹟。
參、建築價值
3.1 建築風格
這棟白色外觀的二層樓洋式建築,平面略成方形,入口朝北,東側突出迴廊可供遮蔽之用,室內則採中央走廊梯間佈局,廊柱為簡潔的希臘柱式。其在風格界定上多有爭議,台北市古蹟這本書歸類本建築物類似美國南方的殖民式樣,而漢光建築師事務所調查報告稱其是英國維多利亞式,又按地政事務所建築改良勘測結果為「本國式」,回顧本建築建造之時間為日治時期,當時日本逐漸西化,建築樣式由「和風」轉向「洋風」,無論在建築溝造與樣式多有新的嘗試,又台灣當時為日本之殖民地,因此當時出現許多仿洋式的公共建築,本建築亦不例外,故在這樣的過渡之下,其建築亦呈現一種過渡的風格,別具特色。
3.2 建築建造歷程
【初建 西元1925年 領事館時期】

台灣土地建物株式會社註一設計興建,日據時期台灣土地建物株式會社在台灣有許多卓越之建設,由於台灣光復與都市更新,其在台灣之建築作品已所剩無幾,從台灣史的角度,這棟建築物是見証「台灣土地建物株式會社」之最佳建物,在台灣建築史上具珍貴驗證之價值。
【第一次增建 領事館時期】

1F西南側新增一層樓平屋頂
2F北側原露台加建斜屋頂及三面加窗

【第二次增建 領事館時期】

1F東側原柱廊處加鋪地板及落地玻璃窗
2F無增建
【第三次增建 國民政府遷台 大使館時期】


1F於西側增建一加強磚造建築物
2F於西側增建一加強磚造建築物,1F與2F間有一夾層
3.3 建築修復
前美國大使館自中美斷交(1979)後就不再使用,其內部空間與細部多有毀損,就「三級古蹟前美國駐台北領事館再利用期中報告」(2000,12)之修復調查方法如下:
一 、拍照
內容包括:整體、細部、大型樣式及破損。拍照之前先於簡圖上規劃順序然後依序完整進行。
二 、實測調查
範圍包括:主體建物、庭院鋪面、景觀植栽、附屬設施、周圍環境。
正統之建築施工方式為設計、繪圖、建築施工、室內裝修依序逐步完成﹔在修復工程時,由於建築物已存在,是故必反過來做,除結構本體須以其他科學方法獲得資訊外,應先行對現在建築物調查測量並繪出圖樣與結構資訊合併,於充分了解建築物建造當時知各種情況後,再重新重塑使建物再生達成修復工程之目標。
肆、價值的轉換---本身建築價值、歷史價值
4.1 市定三級古蹟
這棟建築物無論歷經多少政權變遷,一直擔任美國駐台領事館的角色,未曾轉為其他用途,為台灣與美國關係的歷史見證物。
4.2 建築主體之呈現
就建築本體而言,建築修復團隊認為本案後方後期加建(車庫部分)在建築語言及保存價值方面都無法與主體建築物相提並論,因此以淡化抽象化之手法使其對主體建築物干擾減至最小以突顯建築主體之價值,使其成為視覺之焦點,其建築修復態度為:尊重古蹟,強調保存意義﹔重新平衡其地中份量,減低量體物質性。

修復前北向立面圖
修復後北向立面圖
4.3 修復與再利用評估
缺點--由於斷交後就不再使用,就其歷史文化價值而言並無文化意義的居民集體記憶可供喚起。就建築本體而言,由於建築本體年久失修,且二十餘年來皆未使用,部分樣式已腐爛不可考。
優點—由於使用型態並未有太大轉變,建築本體修復與重現目標較明確簡單。
4.4 再利用---文化創意產業
再利用︰依據《建築、設計、工程與施工百科全書》(Encyclopedia of Architecture, Design, Engineering & Construction)
之定義,再利用乃是:
在建築領域之中藉由創造一種新的使用機能,或著是藉由重新組構(reconfiguration)一棟建築,以便其原有機能得以一種滿足新需求之新形式,重新延續一棟建築或構造物之舉。有時候再利用也會被人稱為建築之調適或改修。建築再利用使得我們可以捕捉建築過去之價值,利用之,並將之轉化成將來之新活力。建築再利用成功之關鍵乃是取決於建築師捕捉一棟現存建築之潛力,並將之開發為新生命之能力。
4.5 再利用空間限制有哪些?空間介入手法為何?
就三級古蹟前美國駐台北領事館在利用工程規劃期中報告所提出之再利用方案建議如下:
方案一 國際藝文交流中心
以程式為單位,本建築為表演場地之一,由此需要改變的內部空間較少。
方案二 現代城市建築藝術之家(吸引特定族群)
內部空間須配合一定數量之人際使其能順利運作。
方案三 書店及咖啡廳
人潮較多,內部空間流動性要較高。
方案四 多功能展覽廳
容納人數更多,內部空間流動性要更高。
評估

就一連串多方評估與政策的施行(參閱附錄一、台北市創新財務措施),本案最後以方案三為施行之最佳考量。
民間資金的投入與文化團體的進駐,本案的成功經營亦成為台灣未來文化創意產業發展與古蹟活化再利用之優良示範案例。
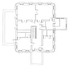
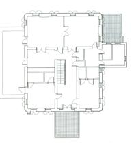
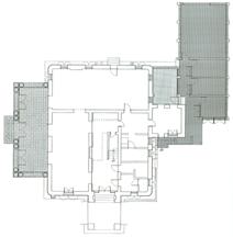
伍、新與舊的對話
BEFORE AFTER
![]()



![]()







陸、社會價值---新聞探討
「台北之家」歷史與電影文化新據點 中時 Aug. 8, 2002
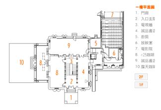
「圓山別莊」和「台北之家」前美國大使官邸,預計十一月重現風華,圓山別莊將以藝術家聯誼中心成為緊鄰美術館的據點;而台北之家則結合電影藝術,由台灣電影文化協會經營,成為台灣電影推向國際的重要窗口。台北市長馬英九昨日馬不停蹄巡視目前正由文化局委託專業團隊規劃修建的這兩處古蹟。他在建於一九一四年的圓山別莊這幢老建築中,仔細鑑賞大稻埕茶商陳朝駿的老宅邸。位於基隆河畔中山橋旁的圓山別莊休閒別墅,當時用來接待茶商公會重要成員和其他上流社會人士的社交場所。這幢建築歷經日本憲兵隊徵用、前立法院長黃國書住宅,後來在韓戰爆發美軍協防期間,圓山別莊一帶是美軍眷屬住宅區,該建築因此成為中國藝品館;由一九七五年美軍撤防至一九七九年是空屋閒置期,後再由前台北市長楊金欉核定為公園處北區分隊駐在所,未來則將成為藝術家聚會所... ... 當場景來到中山北路前美國大使官邸「台北之家」,馬英九特別強調,這幢美麗的南洋式建築,有別具風格的維多利亞式花園,但其歷史意義不在於曾是美國領事館,因為在偽滿州國也有美領事館,這不稀奇;重要的是,自遷台後首任駐華大使司徒雷登以降,有六任大使住過,在這幢建築,曾是台海保衛諸戰役中,台灣和美國共同防禦的重要討論場所之一。正因為這幢老宅和中美外交、軍事等有密切關連,馬英九期許規劃單位應將此融入設計之中呈現。他說:「我的想法很簡單,就是這段歷史不能遺忘,如果可能,也許一年中有一或二次邀集外交官或歷史學者,暢談五十年代以降的國際關係,在台北之家內誠品書店或展示空間,也可將當年的外交或相關大使傳記,一併納入。」... ... 前美國大使官邸已定位為「台北之家」,由台積電捐款六千萬元修復,未來將由導演侯孝賢領軍的台灣電影文化協會經營。這幢宅邸曾是美國歷任駐華大使官邸,尼克森擔任美國副總統時來台還住過該屋。歷經廿年荒蕪,修復後的「台北之家」可望設有八十八席位藝術電影院,規劃團隊表示,將開啟一扇不同於主流好萊塢電影的視窗。此外,維多利亞的花園凝聚下午茶的悠閒氣氛,竹林則塑造中國文人雅士琴、棋、書、畫的文藝風。規劃團隊指出,空間規劃則包括一樓光點藝術電影館、二樓多功能演講廳、藝文展覽室,並結合戶外藝文廣場、一樓的咖啡館、誠品書店、二樓的電影沙龍等,讓這座古蹟成為台北歷史與電影文化的新據點。
![]()
前美國使館文史資產 將保留 聯合1/18 2002
三級古蹟前美國大使官邸前正進行整修工程,北市文化局規畫再利用做為「台北之家」,市議員王浩昨天會同多位專家前往會勘,要求文化局修復時應保留官邸內部的建築工法、建材,以及美國官員留下的物品,做為台、美關係的見證,文化局允諾盡量保留舊文物......王浩昨天邀請台科大建築系教授王惠君、建築師楊意亮,及文化局主任祕書張雲程前往前美國大使館,王浩指出,官邸內部的建築工法是早年的建築方式,瓦片築牆早都已經淘汰,天花板、隔間使用木條和竹片,是少見的建築手法,甚至當年美軍使用的壁爐、美式三孔圓形白色陶瓷插座,都是曾經見證的歷史,部分官邸留下的文化資產,文史資料可能都會因修復工程而遭到破壞......文化局強調,該古蹟自民國六十八年中美斷交後即荒廢無人使用,內部陳設家具、文件也已清空。古蹟修復活化後,將開放供公眾使用,不再屬於特定私人寓所,更能發揮文化功能。因此主建築內部部分附屬空間,依古蹟再利用定位做局部調整,但並未改變古蹟外觀、且不影響內部人文風貌。此外,文化局正徵集有關老照片或相關檔案,在古蹟開放後彙整展示,豐富各界對古蹟價值之認識。
柒、本案修復與再利用流程:
市定三級古蹟

捌、結論
8.1 新價值的產生
誰說古蹟一定是嚴肅的﹗台北光點本者「古蹟新生、打造市民藝文空間」這樣以人為本的核心經營概念,創造一個優質的藝文形象,在假日我們可以看到不同年齡層之消費族群使用建築內部不同的空間,清楚的使用者定位與空間動線活潑流暢的設計,對於新的集體認同產生莫大的效應,舊的空間產生新的場精神,由於新的族群使用它,產生許許多多的故事,新的故事與舊的空間與會產生了對話,在未來的價值中,台北之家必定是許多市民難忘的回憶與經驗。
8.2 舊價值的保存
回到第壹章林濁水議員所提到的﹕「基於維護保存文化資產的基本原則,舊美國駐台領事館係台北市甚至台灣眾多歷史建築中少數具有外交史意義的文化據點,且它是一呈現台美外交關係轉變意義的空間。」以及第陸章的兩篇新聞,就政治角度而言,本建築具外交的歷史意義由原本的外交博物館到現在的電影主題館,期間勢必存在著許多的掙扎﹔現在的光點除外觀形式保存之外,建築內部與其本身舊有形式已不復存在,所要彰顯的外交價值在新的建築經驗中,除建築別名前美國大使館外,卻不見一絲蹤影,在建築本身的價值與經營為考量,舊與新之間似乎存在者許多的矛盾與無奈。
玖、參考資料 :
1.賴朝俊建築師事務所.OL規劃團隊,2000.12
,三級古蹟前美國駐台北領事館在利用工程規劃期中報告
2.李永展,2004.07.04 ,閒置空間如何再現風華,中國時報
3.台北市政府文化局,台北文化地景整體規劃與調查先期研究
4.邱銘珠,2003.7,以使用者感官經驗為導向的舊建築再利用之研究,中原大學室內設計學系碩士論文
5.黃素絹,1994,古蹟保存之經營管理--國民信託之應用,台大城鄉碩士論文