首頁 位置圖 設計理念 表現手法 室內圖片 其他圖片 平面圖 3d圖片 研究心得 skp圖檔 cad圖檔

地層平面圖

一二三層平面圖

 

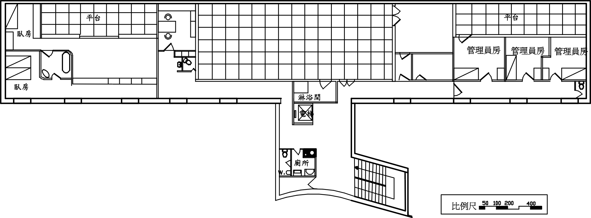
四層平面