

|
|
出生1856年2月21日,阿姆斯特丹 死於1934年8月12日,海牙
|
|
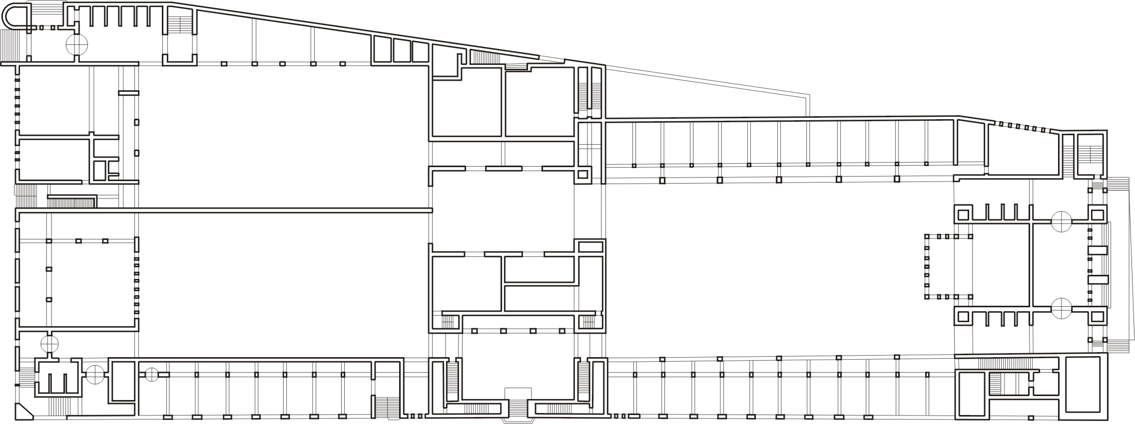
| New Beurs
|
建造 ---------1896-1903 建造地點 --------阿姆斯特丹.荷蘭 建築類型 --------證券交易所 設計需求 --------重建被火燒毀的證券交易所
|
|
|
||
|
||
|
表現手法
|
拱型入口旁運用了高高的鐘塔來拓展寬廣的視覺,進入建築 內部以兩個狹小的大廳來對比強調出證券交易空間的寬廣。 建築外觀使用大片清水磚牆面,交易大廳上部為拱型鋼鐵屋 架,設有大面積玻璃天窗。
|
|
|
|
||
|
|
||
|
|
||
|
|
||
|
B8913036 四建築五 呂凱雯
|
||