

建築師:Parmegiani Giacomuzzi---Moore Associati
建造年代:1997
座落地點:Udine,Italy
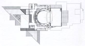
粉紅箭頭:主入口動線 藍色箭頭:後場動線 淡黃色塊:門廳 粉紅色塊:前廳 淺綠色塊:觀眾席 淺藍色塊:舞台 淺黃色塊:休憩空間 中間挑空可俯瞰前廳 夾層:BAR空間 淺藍箭頭:上層樓座動線 可通下層休憩空間或直接離開 樓座觀眾席之間無直通動線
![]()
![]()
![]()
![]()
![]()
![]()
![]()
![]()
![]()

Plan of the ground floor
![]()
![]()

Plan of the first floor and mezzanine
![]()
![]()
![]()

Plan of the third floor

General section








設計理念:
跟市中心能互相影響
有綠色地景-又能處在周圍城市地景的環繞之中
留有大量空間供停車和搬運道具幕景
動線安排:
主要入口必須有確切的位置
…………..路徑為導向市中心之道路的延續
步行者導引路線:讓人愉悅且具高度興趣的環境
在覆蓋且被保護著的路徑上,
為離開停車場的觀眾安排會議室和涼廊式空間
空間效果:
主要展覽和休閒設施的比例比劇場設施的設置要來得高
開場前和中場休息:大廳空間的體驗-門廳和畫廊結合
--------讓觀眾能找到方向,同時融入社交體驗中
前廳空間以大型簾布覆蓋:擴大空間效果
在下午時段提供自然光
全然的透明度提高室內和室外的交互作用
在晚上以燈光塑造出城市地景中的吸引力
劇場規劃:
主廳:音樂會、歌劇、芭蕾表演可容納1200人
---劇場表演可容納900人
舞台形式分為兩種:20m--音樂會形式
---------16m--歌劇、戲劇表演
樓座的形狀與特色:馬蹄形觀眾席--區域分隔
古典義大利劇場形式設計
目的一
觀眾個體與整體之間互相影響所產生的劇場體驗
目的二
增加劇場的多面性:
--去除通往頂層樓座的路徑
--使觀眾不會感覺到有空的區域的存在
(影響視聽效果)
目的三
增進演藝廳的主要特色:
--有小型的前舞台
--對舞台上的細部動作能有更直接的體會
細部設計:
舞台檐和樓座的深度判定在能讓音響最佳化的尺寸
天花板和照明設施的規劃:
強調hall plan 與中心聚焦--古典式設計
天花板燈光和欄杆的凸形設計也都是為了增加音響效果
資料來源
1.
L’ARCA 129, Sept. 1998, pp.64-71
2. http://km0733.keymachine.de/stotzkontakt/eib/englisch/references/theatre_eng.htm