文字方塊: 建築類型:Office Buildings
建築名稱:Office Habour Tower
 

 

 


基本資料    基本圖面    設計說明。分析

 

 

 

基本資料

建築師: William Alsop Architects Ltd

建造年代:2002完工

座落地點: Dusseldorf, Allemagne

 

 

 

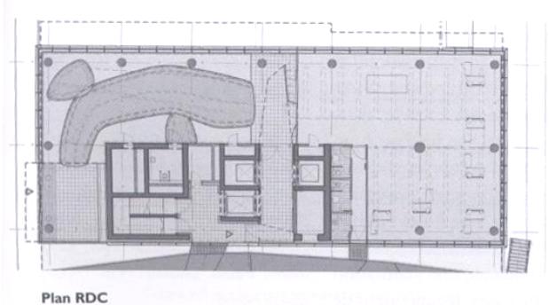
基本圖面

 

箭頭:主要入口

粉紅色區域:lobby

綠色區域:service core

 

地面層

 

 

 

office標準層

 

 

 

 


Top