88 Wood Street

Back

建築圖面

1F平面圖  9F平面圖  11F平面圖  東西向剖面圖 17F平面圖

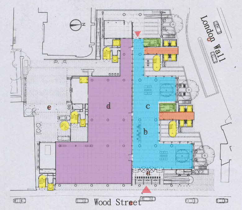
1FPlan

TOP

 

空間說明:

a 入口

b 接待區

c 大廳

d 多功能使用空間

e 服務入口

 

 

 

Section

TOP

 

 
9F Plan

TOP

 

空間說明:

此為9F~10F的標準平面

11F Plan

TOP

 

空間說明:

此為11F~14F的標準平面

 

17F Plan

TOP

空間說明:

此為11F~14F的標準平面