

建築師:McCullough
Mulvin Architects
建造年代:1905初建
1970改建
2003增建
座落地點:Waterford,
Ireland

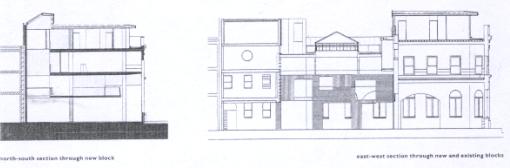
新建物剖面-------------------------------------------------舊建物與新建物的剖立面
![]()
![]()


![]()
![]()
![]()

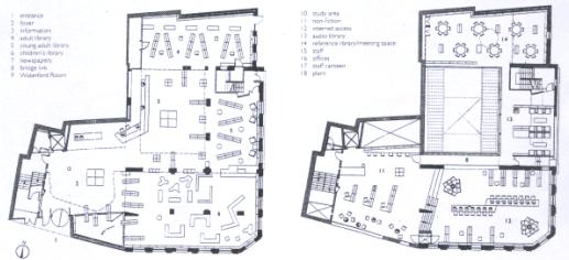
ground floor-------------------------------------------------------------second floor
三個閱覽空間:-------------------------------------------------------上:參考室 / 會議室
由上至下--成人—青少年—兒童-----------------------------下:視聽網路空間
![]()
![]()
![]()
![]()
![]()
![]()
![]()

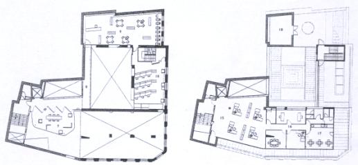
first floor--------------------------------------------------------------------third floor
上:本地資料室----------------------------------------------------------上:設備間
中右:讀書間-------------------------------------------------------------下:職員辦公空間
下:閱報室
設計起源:
1905--古典式門面….強化入口的山形牆
-------------Kilkenny limestone
------------以兩層樓高度的閱覽室為中心
-------------Bakehouse Lane那一向
以低層且外表較粗糙的石灰石量體作為結尾
----------看館者居所
1970--曾經歷大規模的整修
設計理念:
now--試圖將古典式樣與現代所需並置存在
拓展到鄰接經營者的地—提供21世紀新的資訊設施
入口的改變:由舊建物移至新建物
平面的改變:L-shape
運用light和section製造對角線的循環
立面語彙的呼應:舊建物原本低層的部分也加建至三層樓高
新立面卻沒有延續舊有門面的材質與尺度,創造新的表現
library的功能保留在舊建物,由新建物製造導引
reading room往上抬升,最上層的辦公空間緊密扣住新舊之間
公共性:由低層到高層↓

資料來源
1.
The Architectural Review, 1283, Jan.2004
2. http://www.mcculloughmulvin.com/pages/loc_f1.html