Casa del Fascio

      法西斯總部

Architect Giuseppi Terragni (1904-1943)
Location  Como, Italy
Date 1936
Building Type office
Construction System reinforced concrete
Climate mediterranean
基地環境 Casa del Fascio位於歷史性都市核中心Como廣場旁。可與廣場結合活動,具政治上的考量。
基本圖面       

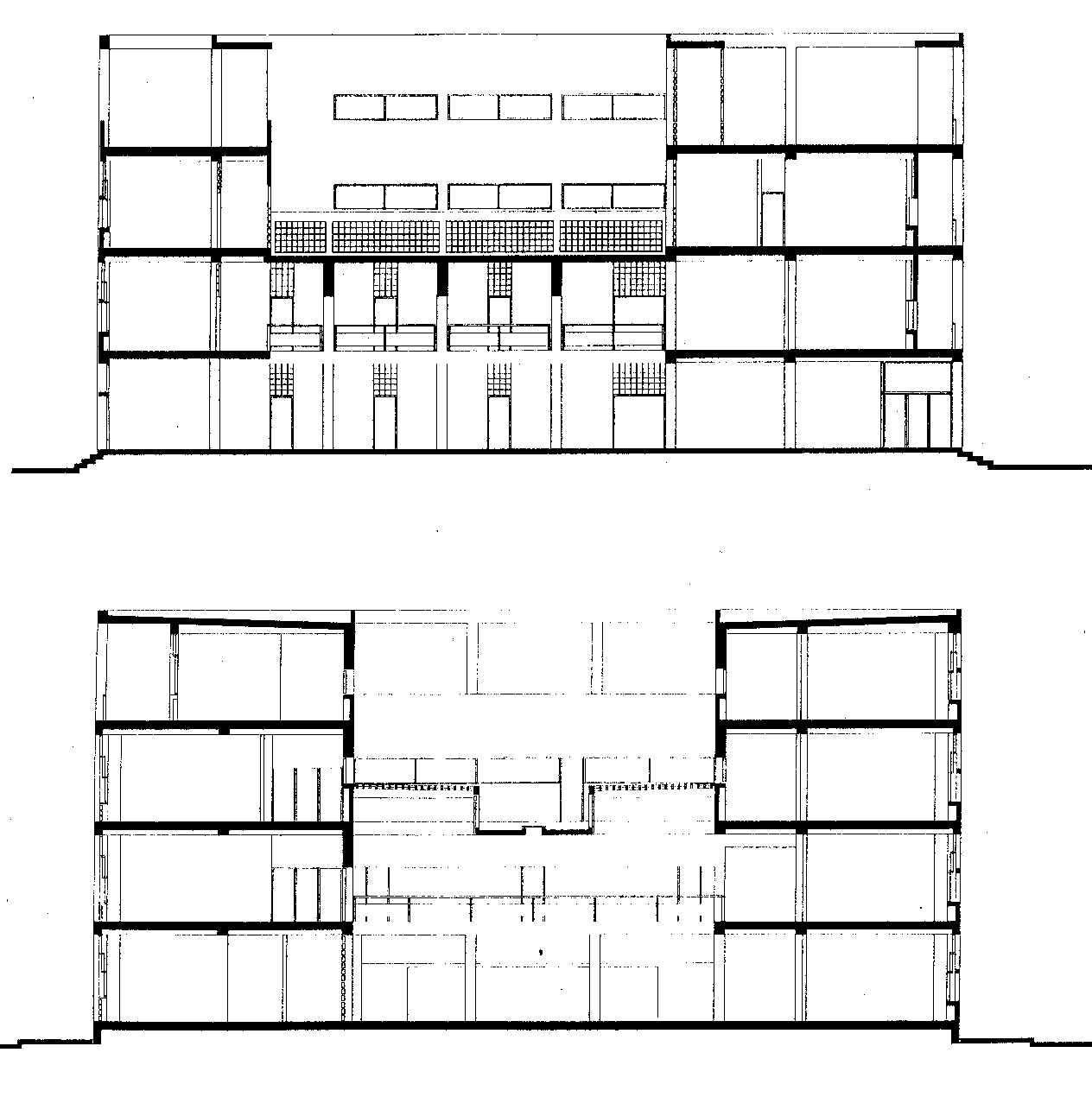
  平面              立面              剖面

   

剖面                                    立面分割                                         透視

        

  透視照片                        正立面照片

      

  與廣場關係             結構系統:柱梁結構            等角透視 

    

     內部--會議室照片                                          迴廊照片

設計理念 1.「...我們無法與傳統劃清界線…新的、真正的建築應該是邏輯與理性緊密結合的結果」意圖將義大利古典主義的民族傳統價值與機械時代的邏輯性做更巧妙的結合

2.古典主義的民族傳統價值

3.機械時代的邏輯性

4.機能的設計:時代背景下政治性的考量

表現手法 1.中庭的設計取自於傳統的城市樓房(palazzo)模式,立面的窗戶主要在於呈現內部中庭。

2.立面呈現出嚴格的幾何關連性,建築物為一高度16.6 公尺,寬度33.2 公尺的正方型單元中進行設計。此半立方體表現出非常理性的幾何關係,立面以對角線為關聯性經嚴僅的分割。

3.模矩化的關念:柱列的安排。以簡單的梁柱構架當裝飾,立面的呈現忠實的反映內在空間,整座建築如同一個連續性的空間矩陣。

4.建築物與廣場流通,允許示威的民眾從街上湧進室內,提供當時的獨裁者煽動人民的空間,使整個空間的機能更富彈性。會議室內掛有墨索里尼肖像。門廳內重複的柱列的設計呈現出威權感。

綜合評論 在第一世界大戰之後,義大利面對機械時代與傳統古典藝術的兩鋒交戰,在一片茫然之中,Terragni等七人集團(Gruppo 7)擷取兩項之優點加以融會創造出屬於新的義大利建築的風潮, 利用機械時代的柱樑結構的安排來呈現出傳統古典文化的中庭元素;嚴謹的立面切割理性的幾何關係配合模矩的概念傳達出簡單而重複的展現。除了融合現代與傳統之外,更試圖結合政治考量以設計手法為其精神目標:追隨法西斯革命掃除惡劣社會風氣做實際上的行動。法西斯總部不只是義大利理性建築運動的代表作,更是一座超越意識形態的考量所創造出的一種形而上的建築,同時也創造出一個兼具技術性和紀念性的作品。
參考資料 1.Kenneth Frampton,蔡毓芬譯,(1999) 現代建築史,地景出版社。

2. Kenneth Framptom,賀陳詞譯,(1980)近代建築史,茂榮圖書有限公司

3.http://www.greatbuildings.com/buildings/Casa_del_Fascio.html

4.http://www.centrostuditerragni.it/

5.http://www.0lll.com/lud/pages/architecture/archgallery/index4.htm#italy