近代建築史

  Architecture                                                                                                                             


     基本資料        基本圖面        設計理念       設計手法       綜合評論  

    Town Hall, Hilversum, 1924-31

 

 

  基本圖面

                               

   

 

 

      

  Willem M. Dudok-建築作品分析

    

 

 

 

 

 

 

 

 

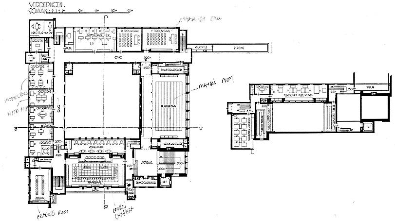
  二、三樓平面圖                                                  立面圖

 

 

 

 

 

 

 

透視圖

          基地配置圖                                                  一樓平面圖

 

  Back