Schröder House 近代建築史期末報告---建築作品分析 四建築三 B9013013 賴逸群
1.基本資料
建造時間:1924-1925
建造地點:烏特勒支,荷蘭(Utrecht, The Netherlands)
建築類型:住宅
基地環境:郊區,溫帶氣候
設計需求:配合Truus Schröder一家之空間需求。
構造系統:鋼+木+混凝土構造
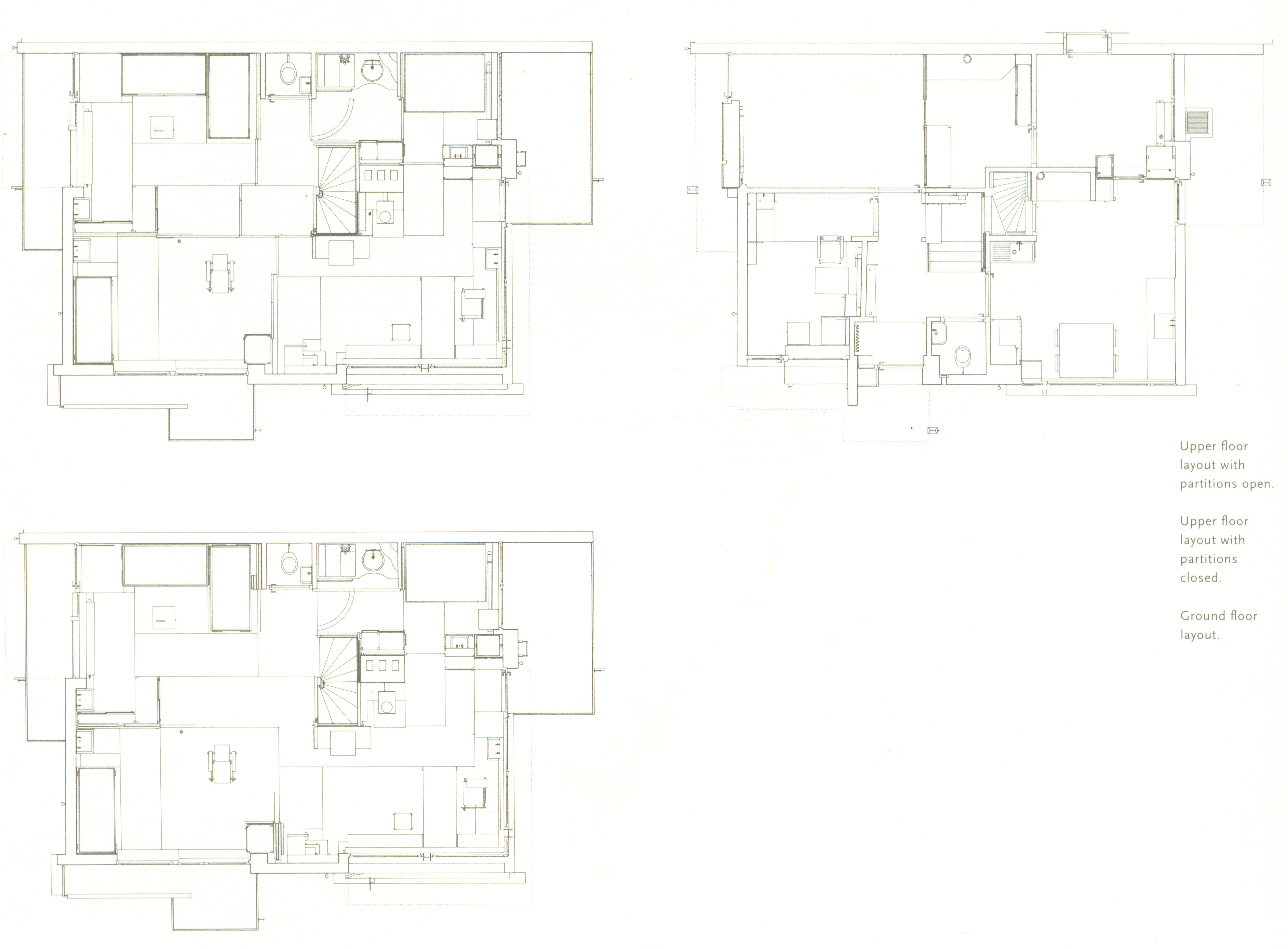
2.基本圖面
平面圖



立面圖


![]()
![]()
剖面圖






圖1

圖2

圖3

圖4
圖片來源:Rietveld Schröder House-Bertus Mulder;Ida van Zijl
3.設計理念
解決女主人對大房子的空虛情緒,以實用性高的機能空間,增加住宅的多樣性,彈性調整各空間以敷使用。
1924 年Gerrit Rietveld 以 Truus Schroder - schrader 的部分名字為房子命名。 當 Truus Schröder 35 歲時, 他們一同設計了Schröder House。 居住者有Truus Schroder及其一個 12歲的兒子和二個11歲、6歲大的女兒,這也是Truus Schröder的律師丈夫的辦公室。
1923年Truus Schröder 的丈夫生病去世,使得Truus Schröder萌生搬離的意念,並打算出租房子,其時與Gerrit Rietveld的認識後,Gerrit Rietveld建議對房子做些空間調整以配合Schroder 一家人的生活;之後,Schroder便放棄搬出。
其間,Gerrit Rietveld 與 Truus Schroder共同討論設計了許多的空間使用問題,例如:賦予了充滿光線的書房,
4.表現手法
運用了鋼/木/混凝土,三種不同的構造組合,外部處理以垂直水平板元素,相互構成,並裸露鋼結構配合整體立面。
傢俱與結構、內裝的顏色形式的一體設計,細部間相互呼應。
5.綜合評論
1987年4月4日 Rietveld Schioder House正式對世人公開。
Truus Schröder是第一個在業主和建築師之間的一個密切合作設計中發現Gerrit Rietveld的建築設計才能。Truus Schröder 在意識到假如沒保存Gerrit Rietveld的重要作品, 現代建築運動就會遭受威脅。
於是1970 年她建立了 Rietveld Schioder Hose基金會,其任務強調他的思想的重要性及其作品的包存,並在 1975年指沔Bertus Muldel 對房子的外部進行重建;在 Schroder's 的 198年3死後再次處理了內部空間和大量的相關資料。
當完成工作時, 基金會將房子 給了Centraal 博物館。透過博物館的經營,至今有超過100,000人次來造訪,而Gerrit Rietveld的成就及名譽不斷地在國際間傳播。
6.參考資料
Rietveld Schröder House-Bertus Mulder;Ida van Zijl
a century of design-Mitchell Beazley penny sparke
http://www.greatbuildings.com/buildings/Schroder_House.html
http://www.greatbuildings.com/architect/Gerrit Rietveld.html