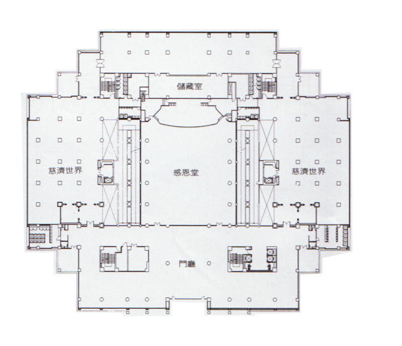
一層平面圖

 

 

 

 

 

     感恩堂------感念慈濟人有志一同的付出,將人物資料、感

                         人故事以藝術方式配合現代新科技展示。

     慈濟世界---位於感恩堂旁750坪空間,展示慈濟過去史、

                         現在史和未來展望。

     門廳

 

 

 

 

 

 

 

一樓的展示空間將陳列展示慈濟世界的昨日、今日及明日。

《BACK》